
暮らしの質を高め、穏やかに過ごす一邸
白金台の街と美しく調和し、贅を尽くしたつくりの邸宅マンション「パークマンション白金台サンク」からR100 tokyo デザインの一邸をご紹介します。
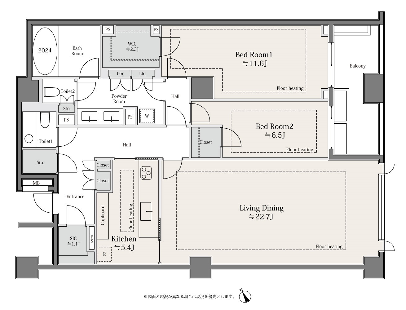
本邸は南東向き2LDK+WIC+SICの間取りに、約116平米の広さを誇る一邸。内装は建物と呼応する上品でナチュラルな色調で整え、穏やかに住まう空間に仕上げました。
キッチンは落ち着いて料理の時間が過ごせる独立型。廊下側からもアクセスができ、利便性の高い動線です。
パウダールームは2ボウル仕様、浴室は2024サイズのゆとりがあり、日々快適にお使いいただけます。主寝室には約2畳の大型ウォークインクローゼットを完備。玄関ホールの大型シューズインクローゼットやストレージが付設し、十分な収納力を誇ります。リビングダイニングのほか、キッチンや洋室にも床暖房を備え、足元から暖かく過ごせる住まいです。
日常に豊かなひとときを添える、上質な住まいをぜひ現地にてご体感ください。
プラチナ通り至近の閑静な邸宅地にある「パークマンション白金台サンク」
ヨーロッパを思わせるアール・デコ調のデザインが施された「パークマンション白金台サンク」。スタイリッシュなデザインの外観に、共用部も細部までこだわり抜かれ、ティーガーデンや大広間、ワインセラーなど高級ホテルのような設えが優美な空間をつくりあげています。フロントではコンシェルジュサービスもあり、マンションの管理状態は高い水準を誇ります。また本邸には機械式駐車場が1区画分、付設します。
東京都庭園美術館や自然教育園など豊かな緑と文化施設が共存する、洗練された街・白金台。当エリアをもっと詳しく知りたい方は、こちらの記事をお読みください。
R100 tokyo WEBマガジン-Curiosity
■アカデミックな風薫る港区屈指の高級住宅街「白金・白金台」を歩く
■専用使用権駐車場:(35,000円/月) ※1台分住戸付設
■駐輪場: (無償) ※1台分住戸付設
■バイク置場:2025年1月15日現在空あり (3,000円/月)
■ワインセラー:2025年1月15日現在空なし (1,500円/月)
■ペット飼育:可 犬および猫(双方合わせて2匹)、小鳥1篭、小動物2匹まで。書類要提出。 (ペット飼育細則あり)
■共用施設:宅配ボックス・ティーガーデン・サロン
■セキュリティ:ベルボーイセキュリティシステム
※対象不動産は4階に存しますが、登記簿上は3階部分となっています。
【リノベーション内容】
<キッチン>
システムキッチン交換/ガスコンロ/浄水器付シャワー水栓/食器洗浄機/電子コンベック/ディスポーザー
<洗面室>
オリジナル洗面台造作/洗濯パン・水栓交換
<浴室>
浴室暖房換気乾燥機交換/給湯器交換
<トイレ>
洗浄機能付トイレ交換(トイレ1,2)
<全体>
フローリング上張り(洋室1,2、WIC、CL、廊下一部、納戸)
壁クロス張替(一部のみ:WIC、CL、納戸)
壁塗装上塗り(全室※上記クロス以外)
天井カセット式エアコン交換(LD、洋室1,2、キッチン)
R1検査実施
【Life information】
<学区>
港区立白金の丘学園白金の丘小学校:約850m(徒歩11分)
港区立白金の丘学園白金の丘中学校:約850m(徒歩11分)
<ショッピング施設>
セブン-イレブン 白金台プラチナ通り店:約400m(徒歩5分)
ローソン 天現寺店:約350m(徒歩5分)
マルエツ プチ 白金台プラチナ通り店:約270m(徒歩4分)
<公園>
国立科学博物館附属 自然教育園:約850m(徒歩11分)
白金台どんぐり児童遊園:約700m(徒歩9分)
雷神山児童遊園:約550m(徒歩7分)
<その他>
松岡美術館:約200m(徒歩3分)
R100 tokyo による企画・リノベーション
本邸は R100 tokyo の企画・リノベーション物件です。R100 tokyo のブランドビジョン「Quiddity of Life~本質的な価値感が表現される暮らし」と、空間作りのコンセプト「Crafted Home」に基づき、住まい手が本質的な心地良さ・豊かさを体感し長く愛着を持ち住み続け、次の住まい手へと引き継いでいける住まい作りを行っています。一邸一邸個性ある空間をリノベーションするブランドだからこそ、立地や空間の個性を丁寧に紐解き、住むことの心地よさを実感し、人生の本質を愉しむための住まいづくりを行います。歴史に培われた「家」の原点と向き合い、上質さを尊重し、タイムレスな価値を創造すること。空間のゆとりを生み出し、細部まで丁寧に整えること。時間の積み重ねとともに深みを増し愛着をもたらす素材を選定すること。光の動きや季節の移り変わりを美しく感じ、日常を豊かに感じられるシーンを持つ空間を目指すこと。そうした住まいと暮らしの提案をしていきます。
<売主・広告主>
株式会社リビタ
宅地建物取引業者免許 東京都知事(5)第84602号
一級建築士事務所 東京都知事第51167
(社)東京都宅地建物取引業会会員
東京都目黒区三田一丁目12番23号
TEL 03-5656-0080
情報更新日:2025年10月23日
次回更新予定日:2025年11月4日
この物件をお探しの方におすすめの記事
-
泉麻人の「東京カルチャーストリート」記事を読む -
街歩きの風景アカデミックな風薫る港区屈指の
高級住宅街「白金・白金台」を歩く記事を読む -
今日もアートの話をしよう遠山正道×鈴木芳雄 連載「今日もアートの話をしよう」vol.42 落合陽一 シグネチャーパビリオン「null²」@2025年大阪・関西万博
記事を読む -
本質に触れる千葉・鴨川の里山再生を通して。「小さな地球」が教えてくれること
記事を読む -
人生を愉しむRetrouvailles à Paris――松浦弥太郎の「パリで再会」
記事を読む -
私が偏愛する名作渋谷慶一郎が偏愛する、「プラダ」のオーダースーツ
記事を読む




































































































































































































![瀬田ファースト [H邸]](https://r100tokyo.com/cms_ver2/wp-content/uploads/2020/09/main2_700_470-1.jpg)




















































