
古くから邸宅街として発展してきた高輪エリア。本エリアに建つ『高輪パーク・マンション』から、R100 tokyo デザインのリノベーション住戸をご紹介します。
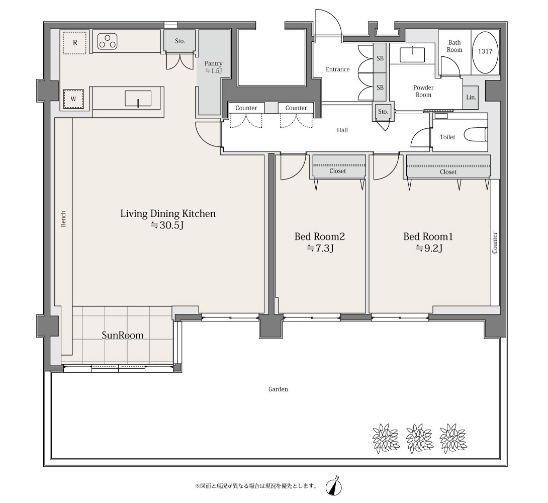
本邸は1階・100平米超の2LDK+SunRoomの間取りです。全室南向きで光を多く取り込む、あたたかな住まいです。
リビングダイニングは約30畳とゆとりがあり、間取りを整えて開口部を広く取ることによって明るい空間を実現しました。将来的には間仕切りを設けて3LDKにすることも可能です。室内は、フローリングのオーク材の柔らかな色合いが穏やかさを感じさせます。キッチンはオープン型キッチンに一新。キッチンからリビングダイニングを通して庭の景色を心地よく臨めます。
リビングダイニングとサンルームの壁面には、一続きのベンチを新設しました。腰をかけて寛ぐのはもちろん、お気に入りの小物やアートなどを飾る棚としてもお使いいただけます。
サンルームの床材はグレージュのイタリア製タイルを採用。リビングダイニングとも違和感なく繋がる間として設え、ヨガや読書など多用途に過ごせる憩いの空間をつくりました。南向きの開口部から陽光が豊かに差し込むため、観葉植物などを育てるのにもお勧めの環境です。約66平米の専用庭には、ハナミズキなど様々な草木が配されており、室内からも緑を愉しめます。
ご家族が思い思いの場所で寛ぐことができつつ、空間がゆるやかにつながり、心地よくコミュニケーションが取れる空間をつくりました。
今もなお、根強い人気を誇る「パーク・マンション」シリーズ
高輪エリアの高台に佇む『高輪パーク・マンション』。地上7階建て、総戸数84戸、2023年3月に大規模修繕が完了したばかりの低層マンションです。エントランスはスロープ付きで防犯カメラ、オートロックが完備され、セキュリティ面も安心。また、エレベーター1台につきワンフロア2住戸という、高いプライバシー性も兼ね備えています。
本マンションは東京メトロ南北線・都営三田線「白金高輪」駅から徒歩6分、都営浅草線・京急本線「泉岳寺」駅から徒歩7分。羽田空港へのアクセスも良好な立地です。高輪皇族邸に隣接しており、豊かな緑の借景を臨めます。都心にありながらも古くからの歴史の名残を感じ、閑静な邸宅街が広がる高輪エリアは食のトレンドの発信地という一面もあります。
高輪エリアについて詳しくは、こちらの記事をお読みください。
R100 tokyo WEBマガジン-Curiosity
■かつての海が見える別荘地は、緑あふれる高級住宅街に——史跡や建築に導かれるように、高輪を巡る
■駐車場:2024年4月5日現在空有り(30,900円/月、33,700円/月)
■駐輪場:2024年4月5日現在空無し ※ウェイティング中(600円/月)
■バイク置場:なし
■トランクルーム:専用使用権付
■ペット飼育:他の居住者に迷惑をかける恐れのある動物の飼育は禁止
【Life information】
<学区>
港区立御田小学校:約450m(徒歩6分)
港区立三田中学校:約700m(徒歩9分)
<ショッピング施設>
ローソン H三田四丁目店:約300m(徒歩4分)
ピーコックストア 三田伊皿子店:約180m(徒歩3分)
ピーコックストア 高輪魚籃坂店:約300m(徒歩4分)
<公園>
高松くすのき公園:約200m(徒歩3分)
三田台公園:約350m(徒歩5分)
<その他>
港区 高輪地区総合支所:約450m(徒歩6分)
港区立高輪図書館:約450m(徒歩6分)
R100 tokyo による企画・リノベーション
本邸は R100 tokyo の企画・リノベーション物件です。R100 tokyo は、ブランドビジョン「Quiddity of Life~本質的な価値感が表現される暮らし」と、空間作りのコンセプト「Crafted Home」に基づいた住まいづくりを行っています。それは、住まい手自らが本質的な心地良さ・豊かさを体感し、長く愛着を持ち住み続け、さらに、次の住まい手へと引き継いでいける住まいを目指したものです。
一邸一邸、個性ある空間をリノベーションするブランドだからこそ、立地や空間の個性を丁寧に紐解き、住むことの心地よさを実感し、人生の本質を愉しむための住まいづくりを行います。
それは、歴史に培われた「家」の原点と向き合い、上質さを尊重し、タイムレスな価値を創造すること。
空間のゆとりを生み出し、細部まで丁寧に整えること。
時間の積み重ねとともに深みを増し愛着をもたらす素材を選定すること。
そして、光の動きや季節の移り変わりを美しく感じ、日常を豊かに感じられるシーンを持つ空間を目指すこと。
そうした住まいと暮らしの提案をしていきます。
























































































































































































![瀬田ファースト [H邸]](https://r100tokyo.com/cms_ver2/wp-content/uploads/2020/09/main2_700_470-1.jpg)
























































