
柔らかな光に包まれ、心落ち着く住まい
今もなお進む再開発により、商業・ビジネス・文化が融合する街へと生まれ変わる赤坂エリア。今回はその赤坂エリアにある「チュリス赤坂」から、白を基調にスタイリッシュに仕上げた住まいをご紹介します。
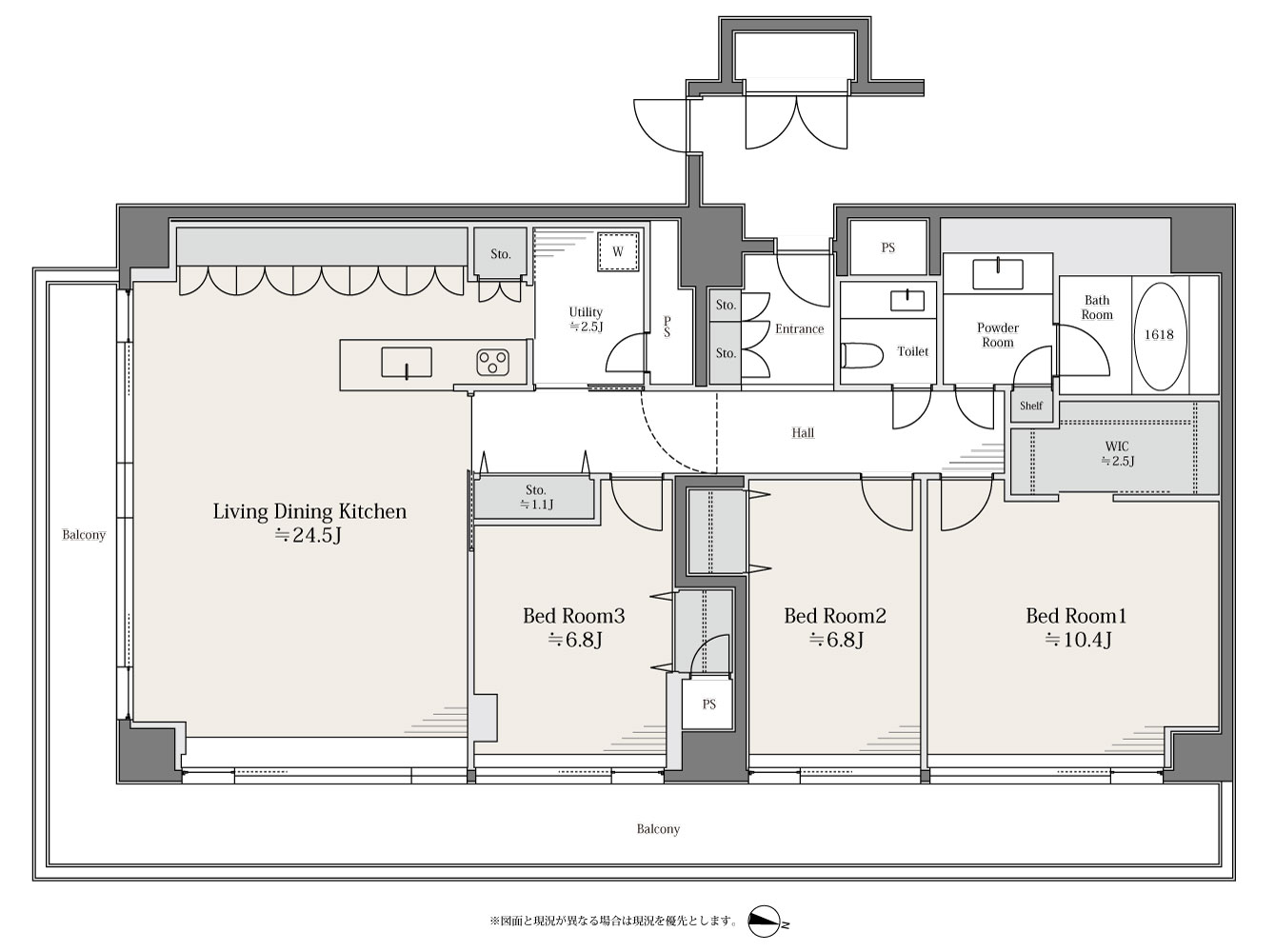
本邸は南東角の住戸位置にあり、二面採光のリビングダイニングは、横いっぱいに広がる大きな開口部に、スタイリッシュなバーチカルブラインドが空間を美しく引き立てます。リビングダイニングとキッチンは、上部のラインを揃えることで統一感を持たせました。間接照明によって落ち着いた雰囲気に包まれます。
キッチンには充分な収納スペースを確保し、壁に沿って設置したボードは広い調理台としても、趣味のものや想い出の写真などを飾る棚としても多用にお使いいただけます。キッチンの横には2.5畳のユーティリティスペースがあり、生活用品などをゆとりをもって収納できます。またキッチンにはユーティリティスペースを介して廊下側からもアクセスができ、利便性の高い回遊導線です。
3室並ぶ洋室は南東側の窓から光が差し込む明るいプライベート空間。また、すべての洋室が共用部廊下と接しない間取りとなっており、角部屋の良さが際立つプライバシー性の高い住まいです。
赤坂2丁目の高台に建つヴィンテージマンション「チュリス赤坂」
官公庁が集まる永田町エリアと赤坂サカスを中心とした商業エリアに隣接した赤坂2丁目。「チュリス赤坂」は「溜池山王」駅より徒歩2分、赤坂駅や国会議事堂駅など複数駅・路線を利用可能な交通利便性の高い立地ながらも街の喧噪から離れた閑静な住環境にあり、モダンなファサードで敷地内に豊かに配された緑が美しく赤坂の街と調和します。共用部はホテルライクな格調高い設えで、フロントサービスや夜間警備など生活利便性やセキュリティ面も充実しており、安心して永くお住まいいただけます。またマンション周辺のエリアは現在も大規模な再開発が進行中で、国際都市としてさらに魅力を高めています。
赤坂エリアをもっと詳しく知りたい方は、こちらの記事をお読みください。
R100 tokyo WEBマガジン-Curiosity
■国際色豊かな邸宅街・赤坂が内包する歴史のドラマ
■駐車場:2025年2月20日時点空あり※機械式のみ、サイズ制限あり (50,000~70,000円/月)
■駐輪場:2025年2月20日時点あり (500円/月) ※使用料は年額請求
■バイク置場:無
■ペット飼育:可 2頭羽まで。(要申請書)
■24時間ゴミ出し可、夜間警備員(19:00~7:00)
※本物件は登記簿上9階、実際は8階部分となります
【Life information】
<学区>
■港区立赤坂学園赤坂小学校:約1100m(徒歩14分)
■港区立赤坂学園赤坂中学校:約1100m(徒歩14分)
<ショッピング施設>
■ローソン オリックス赤坂2丁目ビル店:約170m(徒歩3分)
■ファミリーマート 溜池山王駅南店:約210m(徒歩3分)
■肉のハナマサ 赤坂店:約220m(徒歩3分)
■吉池 赤坂店:約240m(徒歩3分)
■成城石井 赤坂Bizタワー店:約600m(徒歩8分)
■赤坂Bizタワー SHOPS&DINING:約450m(徒歩6分)
<公園>
■氷川公園:約350m(徒歩5分)
<その他>
■赤坂氷川神社:約750m(徒歩10分)
R100 tokyo による企画・リノベーション
本邸は R100 tokyo の企画・リノベーション物件です。R100 tokyo のブランドビジョン「Quiddity of Life~本質的な価値感が表現される暮らし」と、空間作りのコンセプト「Crafted Home」に基づき、住まい手が本質的な心地良さ・豊かさを体感し長く愛着を持ち住み続け、次の住まい手へと引き継いでいける住まい作りを行っています。一邸一邸個性ある空間をリノベーションするブランドだからこそ、立地や空間の個性を丁寧に紐解き、住むことの心地よさを実感し、人生の本質を愉しむための住まいづくりを行います。歴史に培われた「家」の原点と向き合い、上質さを尊重し、タイムレスな価値を創造すること。空間のゆとりを生み出し、細部まで丁寧に整えること。時間の積み重ねとともに深みを増し愛着をもたらす素材を選定すること。光の動きや季節の移り変わりを美しく感じ、日常を豊かに感じられるシーンを持つ空間を目指すこと。そうした住まいと暮らしの提案をしていきます。
Photo: Takuya Furusue




























































































































































































![瀬田ファースト [H邸]](https://r100tokyo.com/cms_ver2/wp-content/uploads/2020/09/main2_700_470-1.jpg)

























































