
200平米超・ルーフバルコニー付 柔らかな線が織りなす心地よい住まい
自然教育園や東京都庭園美術館など豊かな緑と文化施設が共存する、洗練された街・白金台。プラチナ通り至近の閑静な邸宅地にある「芝白金ヒルズ」から、R100 tokyo デザインの一邸をご紹介します。
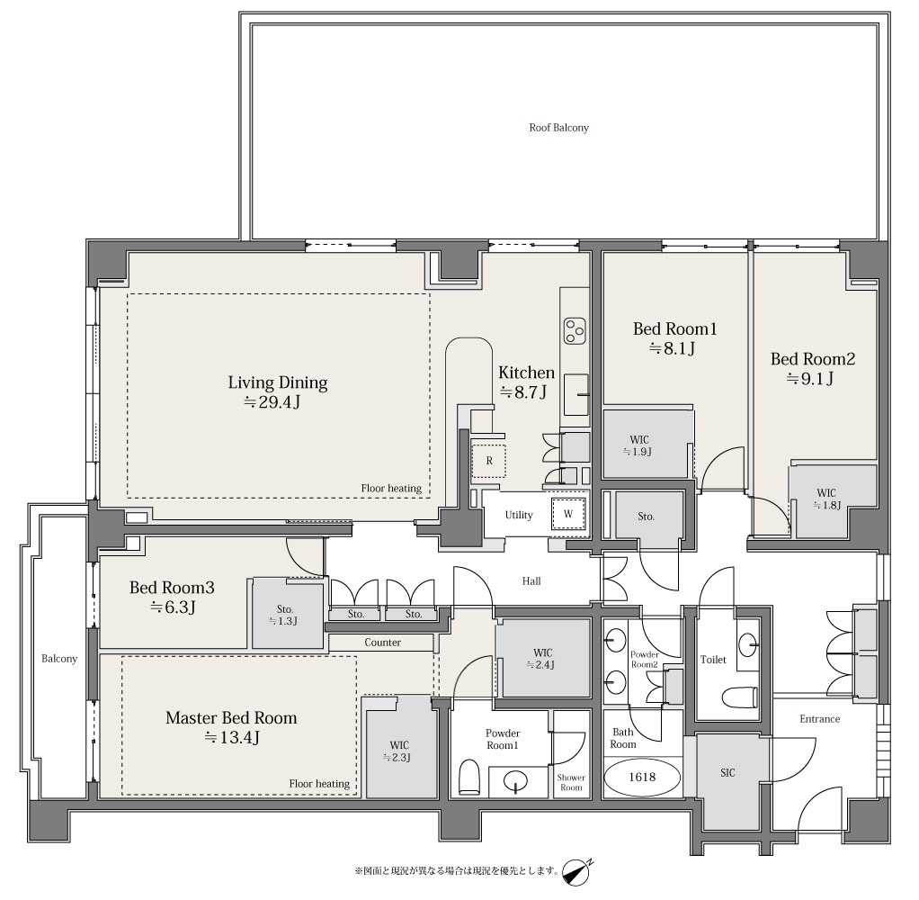
本邸は2階・南西向き・200平米超のゆとりを誇る一邸です。室内は天井を曲面で仕上げ、窓から差し込む自然光と間接照明によって光がやわらかく広がり、美しい陰影がうまれます。壁や床などの素材は落ち着いた色合いでトーンを合わせ、上質で心地よい空間に設えました。
リビングダイニングは約30畳とゆとりがあり、キッチンカウンターは天井と呼応する曲線を用い、リビングダイニングとゆるやかに空間をつなげます。南西側の腰窓からは隣接する自然教育園の緑を借景に、額縁のように切り取った緑の景色をお愉しみいただけます。リビングダイニングの照明は、日中・夕方・夕食・バータイムの4つの照明パターンで構成。シーンにあわせて照明を切り替え、心地よくお寛ぎいただけます。
また、本邸は広いルーフバルコニー付き。緑に囲まれ、豊かな時間をお過ごしいただけます。
主寝室には2つのウォークインクローゼットを備えており、用途に応じて使い分けいただけます。各洋室にも収納スペースを確保し、廊下にはストレージ、玄関にシューズインクローゼットがあり、充分な収納力を備えるプラン。棟内にトランクルームも付設しています。
設計: 久保都島建築設計事務所 久保秀朗・都島有美
久保秀朗氏・都島有美氏によって2011年に設立された建築事務所。光の入り方や空気の通りを意識した洗練された空間デザインに定評があり、住宅をはじめ、オフィス、店舗、クリニック、家具の設計・監理を手がける。各種アワード受賞、雑誌掲載多数。

設計者コメント
「リビングに足を踏み入れた瞬間、まず目を奪われるのは、パノラマ窓の先に広がる旧白金御料地の深い緑。
国の天然記念物にも指定されたこの風景は、日常を静かに包み込むような、特別な静けさをたたえています。
このかけがえのない眺望をより美しく引き立てるため、空間全体はグレージュを基調に、素材の質感にこだわって丁寧に整えました。
天井の構造梁を滑らかな曲面で包み込むことで、空間全体に一体感をもたらし、まるで窓の外の緑をやさしく縁取る額縁のような存在に昇華させています。
天井や壁に柔らかく光を反射させる間接照明は、自然光と調和しながら、時間の移ろいを穏やかに映し出します。
曲線と光が室内にやわらかなリズムを生み、窓の外に広がる有機的な緑と呼応するように、ここでしか味わえない、特別な居心地を感じていただけたら幸いです。」
「芝白金ヒルズ」は洗練された白金台の街並みに相応しい、重厚感のある佇まいの低層マンションです。『白金台』駅より徒歩5分、自然教育園の広大な緑に寄り添う立地です。近接するプラチナ通りは四季折々の変化が美しい並木道で、感度の高い店舗が軒を連ねています。
白金台エリアをもっと詳しく知りたい方は、こちらの記事をお読みください。
R100 tokyo WEBマガジン-Curiosity
■アカデミックな風薫る港区屈指の高級住宅街「白金・白金台」を歩く
※管理費の改定が確定しており、
■駐車場:2025年6月4日現在 空あり (55,000円/月) ※礼金(1か月分)と2年ごとに更新料(1か月分)がかかります。
■駐輪場:2025年6月4日現在 空あり(無償)
■バイク置場:無
■ペット飼育:可
【リノベーション内容】
<玄関>
玄関床交換/収納新設/SIC新設
<キッチン>
オリジナルキッチン造作/ガスコンロ/浄水器付シャワー水栓/食器洗浄機/電子オーブン
<洗面>
オリジナル洗面台造作(洗面1,2)/洗濯パン・水栓新設/収納新設
<浴室>
ユニットバス新設(浴室のみ)/浴室暖房換気乾燥機新設(浴室のみ)/給湯器交換(2か所)(追い炊き機能有)
オリジナルシャワー室新設
<トイレ>
洗浄機能付トイレ交換(洗面1,トイレ)/カウンター収納新設(洗面1のみ)/手洗い器新設(洗面1のみ)
<全体>
フローリング新設(LD・K・廊下・洋室)
水まわりタイル床新設(洗面・トイレ)
壁クロス新規(全室)
建具交換(全部※防火扉枠は既存利用)
収納扉交換(全部)
天井カセット式エアコン新設(LD・K・各洋室)
床暖房新設(LD・主寝室)
配管交換(給水管・排水管・給湯管・追炊き管・ガス管 )
断熱材吹き増し(壁・床)(一部)
曲面天井造作(玄関・LD・K)
R1検査実施
【Life information】
<学区>
港区立白金の丘学園白金の丘小学校:約1,200m(徒歩15分)
港区立白金の丘学園白金の丘中学校:約1,2001m(徒歩15分)
<ショッピング施設>
セブン-イレブン 白金台プラチナ通り店:約240m(徒歩3分)
ファミリーマート 白金台三丁目店:約500m(徒歩7分)
マルエツ プチ 白金台プラチナ通り店:約400m(徒歩5分)
マルエツ プチ 白金台店:約550m(徒歩7分)
<公園>
国立科学博物館附属 自然教育園:約650m(徒歩9分)
日東坂下遊び場:約240m(徒歩3分)
R100 tokyo による企画・リノベーション
本邸は R100 tokyo の企画・リノベーション物件です。R100 tokyo は、ブランドビジョン「Quiddity of Life~本質的な価値感が表現される暮らし」と、空間作りのコンセプト「Crafted Home」に基づいた住まいづくりを行っています。それは、住まい手自らが本質的な心地良さ・豊かさを体感し、長く愛着を持ち住み続け、さらに、次の住まい手へと引き継いでいける住まいを目指したものです。
一邸一邸、個性ある空間をリノベーションするブランドだからこそ、立地や空間の個性を丁寧に紐解き、住むことの心地よさを実感し、人生の本質を愉しむための住まいづくりを行います。
それは、歴史に培われた「家」の原点と向き合い、上質さを尊重し、タイムレスな価値を創造すること。
空間のゆとりを生み出し、細部まで丁寧に整えること。
時間の積み重ねとともに深みを増し愛着をもたらす素材を選定すること。
そして、光の動きや季節の移り変わりを美しく感じ、日常を豊かに感じられるシーンを持つ空間を目指すこと。
そうした住まいと暮らしの提案をしていきます。
Photo:Takuya Furusue,KT
<売主・広告主>
株式会社リビタ
宅地建物取引業者免許 東京都知事(5)第84602号
一級建築士事務所 東京都知事第51167
(社)東京都宅地建物取引業会会員
東京都目黒区三田一丁目12番23号
TEL 03-5656-0080
情報更新日:2025年9月25日
次回更新予定日:2025年10月9日






























































































































































































![瀬田ファースト [H邸]](https://r100tokyo.com/cms_ver2/wp-content/uploads/2020/09/main2_700_470-1.jpg)

























































