代々木・松濤エリア
代々木五丁目の緑溢れる閑静な邸宅街に立地
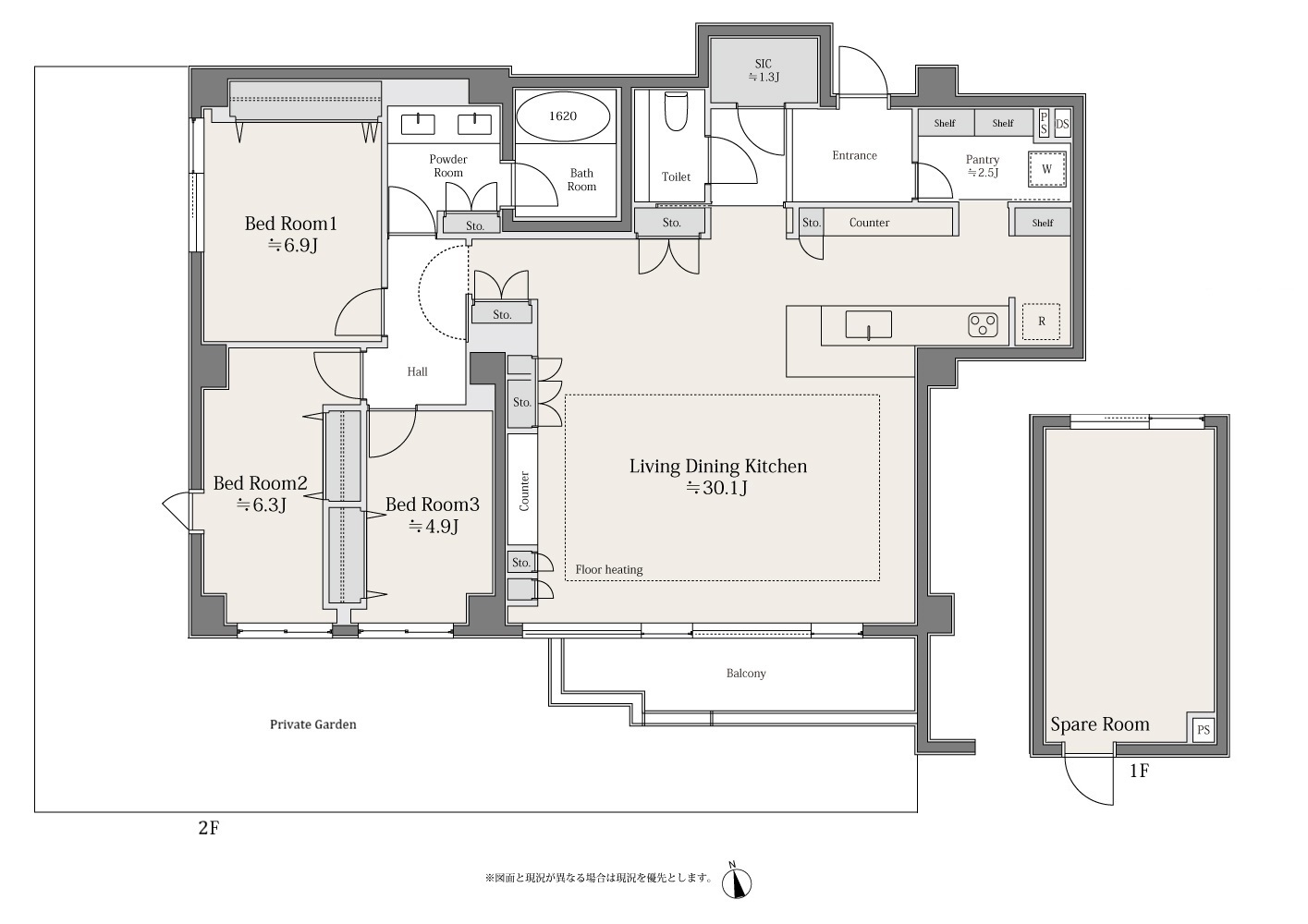
南向き3LDK・ご家族の穏やかな時間を育む住まい
R100 tokyo 会員様を対象とした『住みたい東京都心のヴィンテージマンションアンケート調査』の結果が結果がまとまりました。webマガジン『Curiosity』にて考察と併せ、お届けしてまいります。(計4回予定)ぜひご一読くださいませ。
物件情報
コンセプト
代々木五丁目の緑溢れる閑静な邸宅街に立地
南向き3LDK・ご家族の穏やかな時間を育む住まい
四季折々の移ろいを愉しめる代々木公園に程近く、大使館も立ち並ぶ閑静な邸宅街・代々木五丁目エリアに立地する「代々木パーク・マンション」。本マンションからR100 tokyo デザインのリノベーション住戸をご紹介します。
本邸は2階南向き、専有面積116平米に加え、約90平米の専用庭付きの住まいです。約30畳のゆとりあるリビングダイニングにはテレビボードを兼ねた大容量の壁面収納を設え、生活空間をすっきりと保ちます。元々クローズド型だったキッチンはリビングダイニングと一体の空間として、より自然にご家族とコミュニケーションを行えるように整えました。
エントランスからパントリーを通り、キッチンへと抜ける動線は買い物帰りの荷物運びにも便利で、日々の家事をスムーズにします。玄関壁面とキッチンカウンターにはモールテックスを採用。洗練されたグレーの色彩が光の加減で表情を変え、住まいの中に心地よいリズムを生み出しています。
ご家族向けの3LDKの間取りに加え、1階には独立したスペアルーム(約19平米)があり、書斎や物置スペースとして使うなど暮らしのゆとりを広げる選択肢の一つとしてご利用いただけます。
設計: Junio Design 橋本潤

橋本潤・前野慧によるデザイン事務所。人とその周りを取り巻く環境を見つめ、新たな可能性を広げるデザインを目指しています。
人気の邸宅街 “代々木5丁目”
本マンションが位置する代々木5丁目は、代々木エリアの中でもヒルトップに位置し、代々木公園や代々木八幡宮も徒歩圏の豊かな緑も感じられる立地、そして邸宅マンションが並ぶ閑静な環境から、大山町・上原と同様、邸宅街として高い人気を誇るエリアです。周辺には大使館が立ち並んでいることからミックスカルチャーな雰囲気を醸します。
また、代々木上原駅の方へ少し足を延ばせば、「代々木上原駅前商店街」や「上原銀座商店街」などには、昔ながらの商店や定食店、スタイリッシュなコーヒースタンドや、ミシュランガイドに掲載されるレストランなどがバランスよく存在。個性豊かな店舗も続々と増え、今では文化の発信地でもあるこの代々木エリアは、交通利便性の高さと豊かな緑が共存する類まれな住環境です。
代々木エリアをもっと詳しく知りたい方は、こちらの記事をお読みください。
R100 tokyo WEBマガジン-Curiosity
■文化がクロスオーバーする 大人な邸宅街・代々木を歩く
■駐車場:機械式下段のみ空あり (20,000~40,000円/月) ※サイズ制限あり
■駐輪場:空なし (500円/月)
■バイク置場:無
■ペット飼育:不可 (小鳥1篭、篭の中で飼育することができる小動物2匹までは飼育可能)
※駐車場等の空状況に関しては2026年4月7日時点のものです。詳細はお問い合わせください。
R100 tokyo による企画・リノベーション
本邸は R100 tokyo の企画・リノベーション物件です。R100 tokyo は、ブランドビジョン「本質的な価値感が表現される暮らし」と、空間作りのコンセプト「Crafted Home」に基づいた住まいづくりを行っています。それは、住まい手自らが本質的な心地良さ・豊かさを体感し、長く愛着を持ち住み続け、さらに、次の住まい手へと引き継いでいける住まいを目指したものです。
一邸一邸、個性ある空間をリノベーションするブランドだからこそ、立地や空間の個性を丁寧に紐解き、住むことの心地よさを実感し、人生の本質を愉しむための住まいづくりを行います。
それは、歴史に培われた「家」の原点と向き合い、上質さを尊重し、タイムレスな価値を創造すること。
空間のゆとりを生み出し、細部まで丁寧に整えること。
時間の積み重ねとともに深みを増し愛着をもたらす素材を選定すること。
そして、光の動きや季節の移り変わりを美しく感じ、日常を豊かに感じられるシーンを持つ空間を目指すこと。
そうした住まいと暮らしの提案をしていきます。
リノベーション
リノベーション内容
物件概要
ライフインフォメーション
お問い合わせ
物件のお問い合わせや、内覧のご希望は下記までご連絡ください。