
品格ある光の陰影を生かすメゾネットの住まい
緑豊かな田園調布に佇む、三井不動産旧分譲の邸宅「田園調布パークマンション」
東京有数の邸宅街・田園調布。美しい並木道と整備された街並みが広がるこの地に、「田園調布パークマンション」は静かに溶け込んでいます。東急東横線・目黒線等「多摩川駅」へ徒歩5分、そして「田園調布駅」へも徒歩10分。2路線以上利用でき都心への良好なアクセスを誇りながら、駅からの道のりは、令和6年にリニューアルされたばかりの田園調布せせらぎ公園(徒歩5分/約350m)の緑に包まれ、心地よいアプローチが続きます。夜間は電灯が灯り、18時には施錠される公園は、お子様にも安心のセキュリティ。田園調布エリアに息づく「田園調布憲章」が守る美しい景観と、繁華街のない静謐な環境が、この地の高い治安を守り続けています。
ご紹介する本邸は、1998年築の確かな骨格を持つ「田園調布パークマンション」の一邸。2023年2月には、R100tokyoコンサルティングと施主様によるフルリノベーションが施され、美しさと機能性が見事に融合した住まいへと生まれ変わりました。
タイムレスなデザインが織りなす、上質な暮らしの舞台
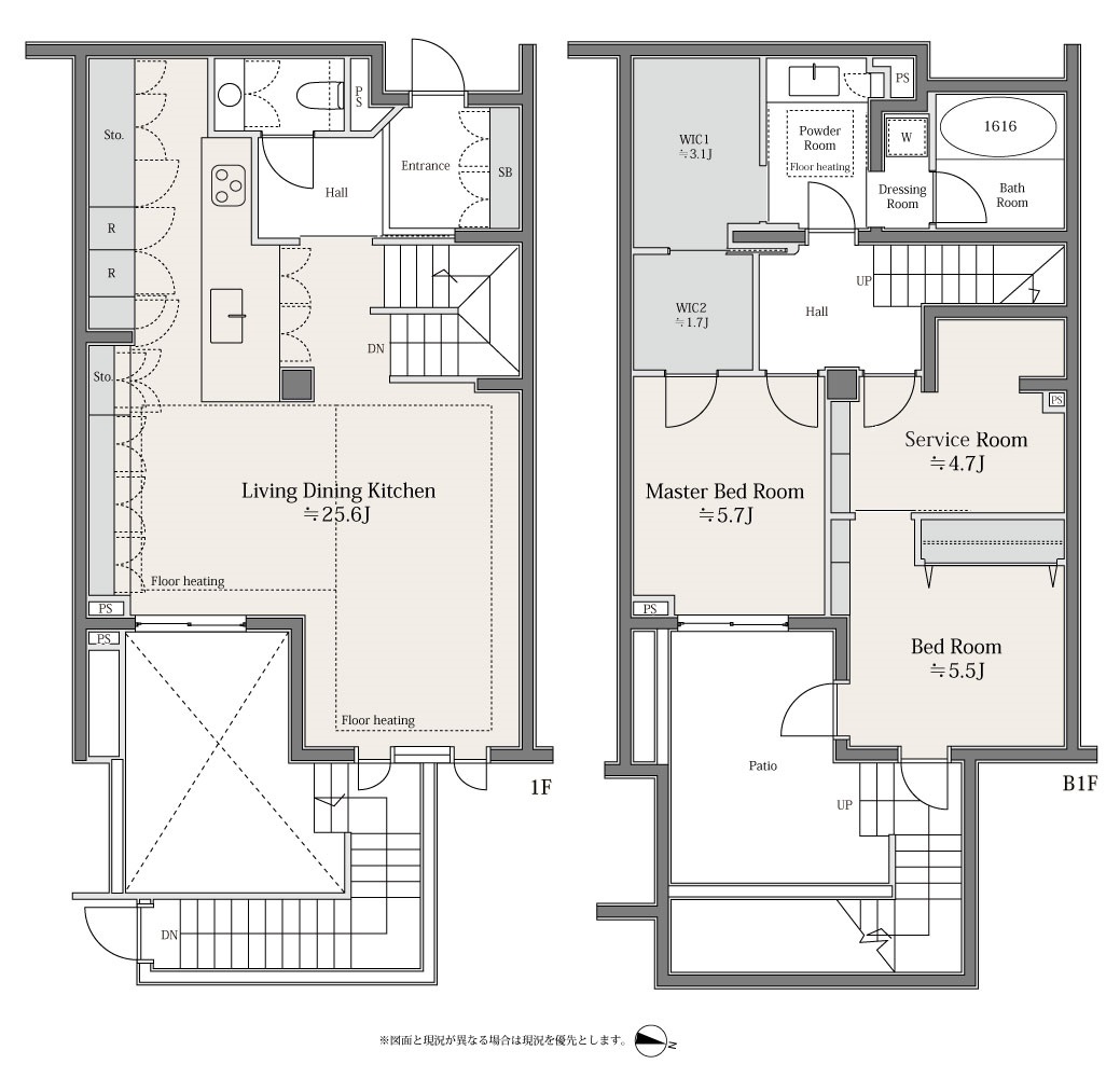
この邸宅は、専有面積101.12平米の2SLDK。地下1階、1階に位置しながらも、光と風を最大限に取り込むよう設計された建物構造と、約17.67平米の広々としたテラス(パティオ)が、外界からのプライバシーを守りつつ開放感を提供します。
特筆すべきは、マンション自体の普遍的な美意識です。外観・共用部の設計には山中デザイン研究所が携わり、エアコン室外機を外から見えないように配置したり、共用廊下の壁に外壁と同じ素材を用いるなど、細部に至るまでこだわり抜かれています。築28年とは思えないタイムレスな魅力は、こうした緻密な設計の積み重ねによって築かれました。そして、専有空間においては、梁がないフラットな天井ラインが、開放感とデザインの美しさを実現。この普遍的な価値は、長く愛着を持って住み継がれる住まいとなることでしょう。
家族の時間を豊かに育む、機能美に満ちたプライベート空間
室内に足を踏み入れると、暮らしをより豊かにするための、細やかな配慮と洗練された機能美が迎えます。ダイニングは、家族が集い、語らうかけがえのない場所。床暖房が足元から温める空間で、夜には心地よい間接照明が、一日の疲れを癒し、団らんのひとときを優しく包み込みます。
この邸宅のキッチンは、「シェフズキッチン」の思想が息づいています。Miele社製のIHクッキングヒーターと食洗器は、日々の調理と後片付けをスマートにサポート。そして、収納と一体型のLiebherr製冷蔵庫は、キッチン全体の意匠を損なうことなく、洗練された印象を与えます。本邸のリノベーション全体を手掛けた山田悦子設計事務所と照明デザイナーのタッグは、パントリー・キッチン収納から照明計画まで、細部まで計算された動線と収納割りで設計しており、使うほどにその使いやすさを実感できるでしょう。
また、照明デザインにも深いこだわりが。シーンに合わせて光の照度を調整できるシーンライト照明は、季節や時間帯、気分に応じて空間の雰囲気を一新します。お子様の学習スペースでは文字が読みやすい照度を確保し、リビングダイニングでは照度を落とすなど、暮らしのシーンに合わせた最適な光を提供。光源が目に入らない設計は、視覚的な心地よさをも追求しています。浴室やキッチンなどの水回りにも妥協なく選ばれた上質な設備は、日々の生活に潤いと快適さをもたらします。
田園調布が育む、ゆとりと知的なライフスタイル
「田園調布パークマンション」は、総戸数23戸というプライベート性の高いコミュニティです。三井不動産レジデンシャルサービスによる管理体制が、日々の安心と快適な暮らしをサポートします。
交通アクセスもスムーズです。東急目黒線は三田線・南北線へ、東急東横線は副都心線へと直通し、都心主要駅へのアクセスは非常に良好。急行停車駅であることも、忙しい日々を送る方には嬉しいポイントです。さらに、東急多摩川線を利用すれば、羽田空港へも快適にアクセスでき、ビジネスや旅行のフットワークを軽くします。
そして、この街の魅力は、何よりも豊かな自然と文化にあります。
多摩川駅を挟んでせせらぎ公園の反対側には、多摩川を見下ろす高台に位置する多摩川台公園(徒歩5分/約400m)があります。晴れた日には富士山や丹沢山系まで見渡せる絶景スポットであり、桜や紫陽花など四季折々の花々が咲き誇ります。園内には古墳群も点在し、歴史に触れる散策も楽しめます。
田園調布駅からイチョウ並木を進むと、宝来公園(徒歩10分/約750m)が見えてきます。約70種、1,500本もの花々や高木が植えられた豊かな自然の中で、芝生広場やアスレチック遊具でお子様を自由に遊ばせることができます。池にはカモやアヒルが泳ぎ、動物との触れ合いも楽しめます。
これらの豊かな自然と生活利便施設が融合した田園調布は、都心へのアクセスも良好でありながら、ゆとりと上質を兼ね備えた住環境を提供します。
この邸宅が織りなす、洗練された「時」と「空間」。R100 tokyoが追求する本質的な価値を、ぜひ一度現地でご体感ください。
※所在階:実際は地下1階・1階ですが、登記簿上は2・3階です。
■駐車場:25,000~30,000円/月
■駐輪場:無償 (全23区画、一世帯あたり1台目優先)
■バイク置場:なし
■トランクルーム:空き無
■ペット:可 抱きかかえられる中・小型犬および猫 (飼育細則あり)
■設備・サービス:ゲスト用駐車場、宅配ロッカー、ベルボーイセキュリティシステム
Photo: Takuya Furusue
<広告主>
株式会社リビタ
宅地建物取引業者免許 東京都知事(5)第84602号
一級建築士事務所 東京都知事第51167
(社)東京都宅地建物取引業会会員
東京都目黒区三田一丁目12番23号
TEL 03-5656-0080
情報更新日:2025年10月23日
次回更新予定日:2025年11月4日




















































































































































































































![瀬田ファースト [H邸]](https://r100tokyo.com/cms_ver2/wp-content/uploads/2020/09/main2_700_470-1.jpg)
























































