
5階・140平米超・四方角住戸 ルーフバルコニー付きの住まい
穏やかな街並みと利便性の高さで人気の「桜新町」の閑静な住宅地に立地する「パーク・ハイム桜新町」。本邸は5階の四方角住戸・世田谷の街並みの先に富士山を望むルーフバルコニー付住戸です。
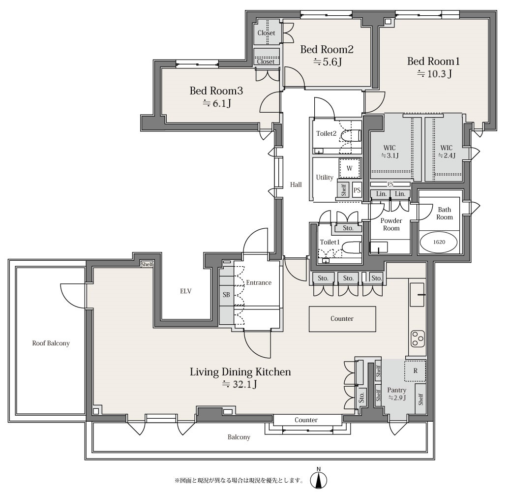
間取りは3LDK+2WIC、140平米超のゆとりある空間です。収納が充実しており、主寝室にはご夫婦それぞれでお使いいただける約3.1畳と約2.4畳の2つのウォークインクローゼットも備えます。
キッチンはシックな色で設え、大きなカウンターを備えた“ステージキッチン”。広々としたカウンターは使い勝手が良いだけでなく、一日を通してご家族と様々な形でお使いいただけます。朝・昼にはお子様とコミュニケーションを取りながら料理をしたり、夜にはカウンターで軽い料理をしながらお酒を楽しむなど、ご家族のコミュニケーションが広がります。キッチン奧には約3畳のパントリーも付設し、収納充実。キッチンにこだわりのある方にお勧めです。
ゆとりある玄関スペースは、シンメトリーなデザインと印象的なドアが、訪れる人を誘います。ご友人やご親戚を招いたパーティーにも動線がスムーズです。
棟内にはエレベーターが4基設置され、それぞれを使用する住戸が少なく計画された贅沢なつくりとなっています。5階フロアでは本邸のみにアクセス。他住戸の行き来が無く、プライバシー性が高く、落ち着いてお過ごしいただけます。
地下駐車場の区画所有権も付属しております。
閑静な街並みと眺望、ゆとりある空間。家族の豊かな時間が流れる住まいです。ぜひ現地にてご体感ください。
世田谷エリアをもっと詳しく知りたい方は、こちらの記事をお読みください。
R100 tokyo WEBマガジン-Curiosity
■静かな農村が「選ばれる邸宅街」になった理由―世田谷を歩く
■契約駐車場:(21,300~29,810円/月)※空き状況はお問い合わせください
■駐輪場:2024年11月19日現在空あり(300円/月)
■ペット:不可
※バルコニーの面積は、竣工図に記載、および算出したあくまで概算面積になります。
【Life information】
<学区>
小学校:世田谷区立松丘小学校:約800m(徒歩10分)
中学校:世田谷区立弦巻中学校:約500m(徒歩7分)
<ショッピング施設>
ピーコックストア桜新町店:約450m(徒歩6分)
ファミリーマート 世田谷新町店:約240m(徒歩3分)
ファミリーマート 世田谷新町三丁目店:約400m(徒歩5分)<公園>
駒沢緑泉公園:約270m(徒歩4分)
駒沢はらっぱプレーパーク:約350m(徒歩5分)
<その他>
世田谷区立中央図書館:約850m(徒歩11分)
R100 tokyo による企画・リノベーション
本邸は R100 tokyo の企画・リノベーション物件です。R100 tokyo のブランドビジョン「Quiddity of Life~本質的な価値感が表現される暮らし」と、空間作りのコンセプト「Crafted Home」に基づき、住まい手が本質的な心地良さ・豊かさを体感し長く愛着を持ち住み続け、次の住まい手へと引き継いでいける住まい作りを行っています。一邸一邸個性ある空間をリノベーションするブランドだからこそ、立地や空間の個性を丁寧に紐解き、住むことの心地よさを実感し、人生の本質を愉しむための住まいづくりを行います。歴史に培われた「家」の原点と向き合い、上質さを尊重し、タイムレスな価値を創造すること。空間のゆとりを生み出し、細部まで丁寧に整えること。時間の積み重ねとともに深みを増し愛着をもたらす素材を選定すること。光の動きや季節の移り変わりを美しく感じ、日常を豊かに感じられるシーンを持つ空間を目指すこと。そうした住まいと暮らしの提案をしていきます。
































































































































































































![瀬田ファースト [H邸]](https://r100tokyo.com/cms_ver2/wp-content/uploads/2020/09/main2_700_470-1.jpg)

























































