【建物】一番町の高台に佇む邸宅
半蔵門駅から徒歩3分、ゆるやかに坂を上った高台、番長中央通り沿いの角地に位置する『フォーシーズンズグランデ一番町』。
2001年築、地上14階建て、総戸数46戸。タイル張りのクラシカルなファサードや大理石を用いたエントランス、広い車寄せ、プライバシー保護の内廊下を採用したホテルライクな内装、ラウンジスペースなど、「番町」の名に相応しい品格を備えています。
防犯カメラやセコムのセキュリティシステムなど、セキュリティ面も安心です。コンシェルジュサービスを利用でき、全戸にトランクルームを完備しています。細則はありますがペット飼育が可能です。
【室内】開放的な2SLDK
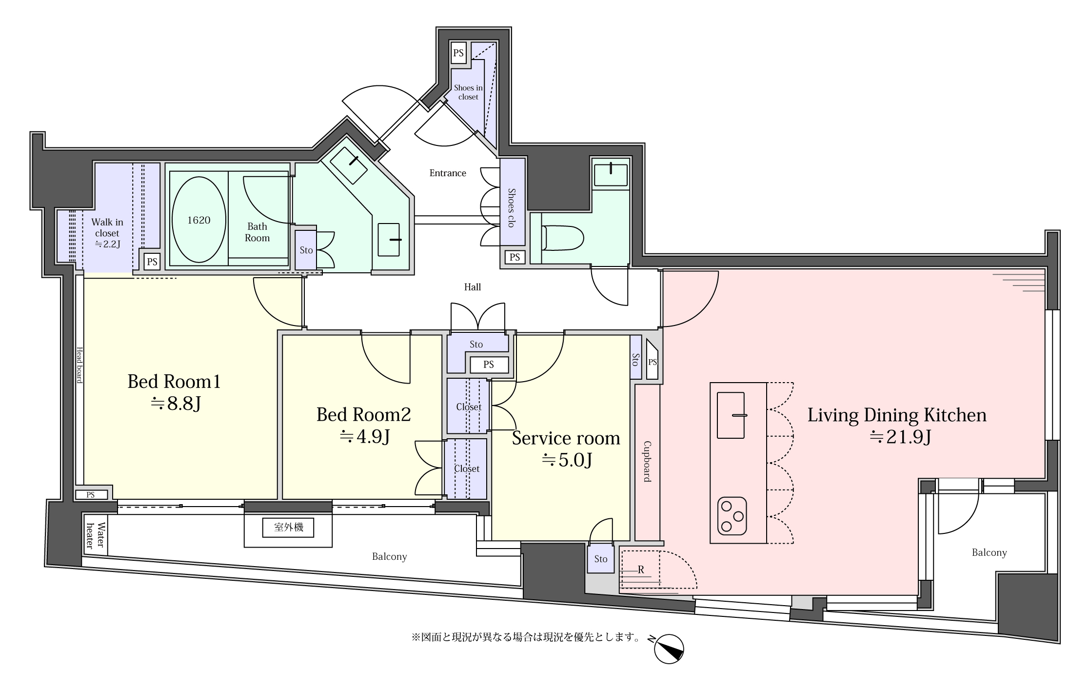
玄関床は大理石の高級感ある設え。シューズインクローゼットと収納棚があり、大容量を収納できます。室内は約99㎡の広さに、約21帖のLDK、リビングインではなくそれぞれが独立した2部屋とサービスルームのプランニング。リビング・主寝室・サニタリーには床暖房を備えており、冬でも快適にお住まいいただけます。
<南西角の明るいリビングダイニング>
LDKは白+グレージュトーンの落ち着いた空間。南西角部屋の2面採光で、天井高が2.6mあるのでとても開放的。間接照明のやわらかい光が伸びやかに広がります。壁面にはピクチャーレールを配し、アートを飾って楽しむことができます。バルコニーからは南方向に視界が抜けます。
キッチンはもともとクローズだったのですが、家族の様子が分かるように、リビングと対面するオープンスタイルに変更しました。背面には十分な収納量のカップボードを新設いたしました。
<居室・サービスルーム>
カーペット敷きでリラックスできる空間です。収納につながるガラスの建具が空間の広がりを演出します。主寝室には就寝前のひとときを心地よく過ごせるようにヘッドボードに間接照明を配しました。サービスルームは、個室としても仕事場としてもフレキシブルに利用できます。採光は少なめですが、その分集中して籠れる空間になりました。
<サニタリー>
モザイクタイルが美しいサニタリールーム。洗面台の下にビルトイン洗濯機がすっぽり収まっている珍しいタイプです。ユニットバスは1620サイズでゆとりがあるリクライニングタイプ。頭をヘッドレストに乗せて脱力感や浮遊感を楽しんだり、浴槽内に腰を掛け半身浴や、お子様と一緒に入る時にも役立ちます。バスタイムをより充実した時間に。
【周辺環境】歴史を継承する、番町アドレス
かつて、江戸城の護衛の要として配置された「大番組」の武家屋敷があったことから由来する「番町」。明治以降、広大な敷地と庭園を持つ武家屋敷は、財界人・文化人によって愛され、住み継がれ、東京でも有数の邸宅地を形成しました。
現代では麴町大通りから大妻通りへ抜ける「番長文人通り」に、ここに暮らした文化人を記したプレートが掲げられ、今なお文教的様相を保ち続けています。周辺には各国大使館や有名私学が点在し、千鳥ヶ淵公園・北の丸公園・外堀公園などの豊かな緑も多く、静かで落ち着いたエリアです。
また、半蔵門駅から電車で永田町駅まで約1分、大手町駅まで約7分、渋谷駅まで約9分と、主要駅へのアクセスもスムーズです。他、「麹町」駅や「市ケ谷」駅など3駅4路線が利用でき、職住が近いことで暮らしにゆとりも生まれます。駅周辺にはスーパー、コンビニ、ドラッグストアなどが揃い、麹町小学校をはじめ、住まいから徒歩圏内に幼稚園・保育園、小学校、中学校など、教育環境も充実しています。




























































































































































































![瀬田ファースト [H邸]](https://r100tokyo.com/cms_ver2/wp-content/uploads/2020/09/main2_700_470-1.jpg)




















































