R100 tokyo Consulting Service
ご自宅のリノベーションのご相談、物件探しからのご相談も承ります。
まずは R100 tokyo の空間をご体感いただける R100 tokyo サロンにてコンサルタントがご案内いたします。
カルチャーの発信地・代官山の旧山手通り沿いに立地
3LDK・160平米超 素材の質感と洗練が調和する住まい
物件情報
コンセプト
最先端のカルチャーやファッション、ライフスタイルの発信地である代官山エリア。旧山手通り沿いに面したアプローチの奥に建ち、街の喧騒から離れた閑静な環境と高いプライバシー性を持つ「ディアナガーデン代官山」から、R100 tokyo デザインの一邸をご紹介します。
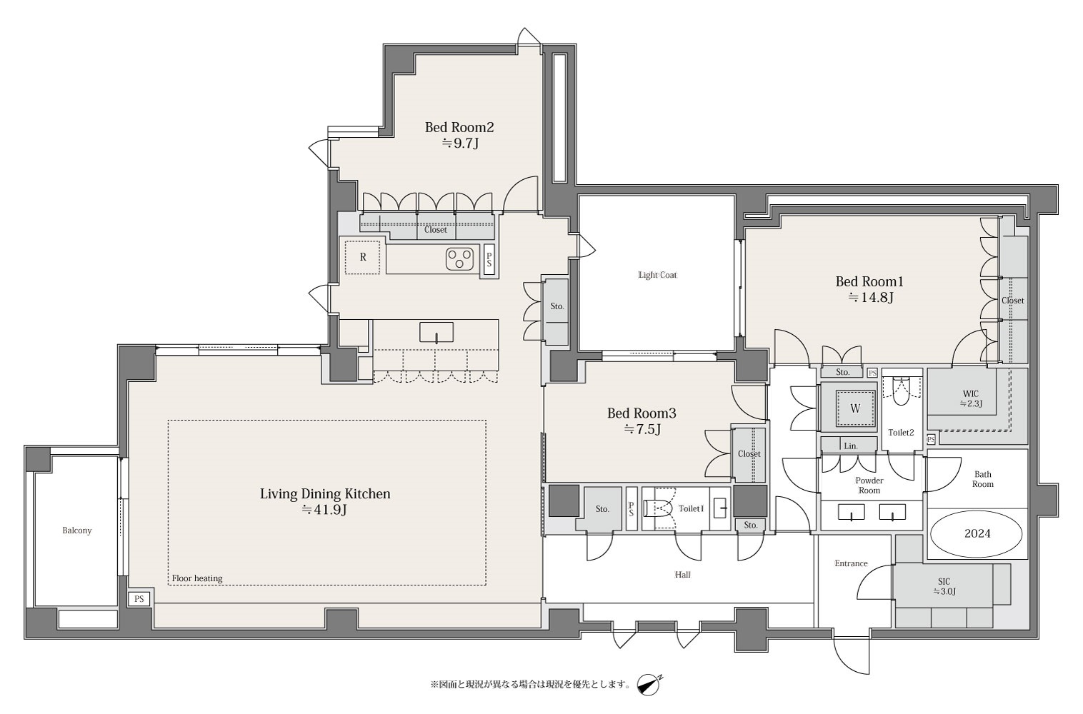
本邸は3階・南西角に位置する3LDK・160平米超の一邸。高台のため空を広く望み、光を豊かに取り込みます。内装は落ち着いた色合いのサンドカラーで色調を整え、自然光と心地よく調和します。木や塗装で丁寧に仕上げた内装に、随所に設えた間接照明が柔らかな光の陰影を生み出し、上質で穏やかな空間に仕上がりました。
ゆとりある玄関ホールから廊下には、リビングダイニングまで一続きのカウンターベンチを造作。腰掛やアートを飾るギャラリーとしてご活用いただけます。
主寝室の約2.3畳の大型ウォークインクローゼットのほか、約3畳の大型シューズインクローゼットやストレージを完備。リビングやキッチン周りの造作部分にも、意匠と利便性を兼ねた収納を各所に備え、十分な収納力を誇ります。
人気の邸宅街・代官山エリアに建つ「ディアナガーデン代官山」は、24時間有人管理やコンシェルジュサービスを備え、日々の暮らしに安心と上質なホスピタリティがあります。またマンション管理適正評価で満点を取得しており、管理体制や設備状態が良好で高い管理水準を誇ります。ペット可物件で、本邸がある3階フロアに限り大型犬も飼育可能です(※飼育細則あり)。目黒川沿いの桜並木や西郷山公園、菅刈公園などが徒歩圏内にあり、都心にありながらも豊かな緑を享受できる穏やかな住環境です。
WEBマガジンにて、本エリアを詳しくご紹介しております。
R100 tokyo WEBマガジン-Curiosity
■奧へと広がる邸宅街・代官山と常磐松で、東京の時空の広がりを感じる
Designer: Kosuke Yokoyama (Lascaux G.K.)
インタビュー記事 [R100 tokyo Magazine Curiosity]
ラスコーの横山幸佑が目指す、タイムレスでノイズレスな空間づくり

【リノベーション内容】
<玄関>
玄関床交換/SIC交換
<キッチン>
オリジナルキッチン造作/ガスコンロ/浄水器付シャワー水栓/食器洗浄機/電子コンベック/ディスポーザー
<洗面>
洗面台交換/オリジナル洗面台造作/洗濯パン・水栓交換/収納交換
<浴室>
ユニットバス交換/浴室暖房換気乾燥機交換/給湯器交換(追い炊き機能有)
<トイレ>
洗浄機能付トイレ交換(トイレ1,2)/吊戸・手洗いカウンター収納交換(トイレ1,2)/手洗い器交換(トイレ1のみ)
<全体>
フローリング交換(LD・K・廊下・洋室)
水まわり床タイル交換(洗面・トイレ)
壁クロス張替(全居室・LD、廊下以外)
壁塗装新規(一部のみ・LD・廊下)
建具交換(全部)
収納扉交換(全部)
天井カセット式エアコン交換(LD・洋室)
床暖房交換(LD)
配管交換(排水管:一時継手以降更新、給水・給湯管:ヘッダー以降更新、追炊き管・ガス管:既存切り回し)
R1検査実施
【Life information】
<学区>
目黒区立菅刈小学校:約650m(徒歩9分)
目黒区立第一中学校:約1,400m(徒歩17分)
<ショッピング施設>
ファミマ!! 代官山店:約210m(徒歩3分)
FOOD&COMPANY 代官山T-SITE店:約290m(徒歩4分)
サミットストア 代官山鉢山町店:約400m(徒歩5分)
代官山 T-SITE:約100m(徒歩2分)
<公園>
西郷山公園:約350m(徒歩5分)
菅刈公園:約450m(徒歩6分)
R100 tokyo による企画・リノベーション
本邸は R100 tokyo の企画・リノベーション物件です。R100 tokyo は、ブランドビジョン「本質的な価値感が表現される暮らし」と、空間作りのコンセプト「Crafted Home」に基づいた住まいづくりを行っています。それは、住まい手自らが本質的な心地良さ・豊かさを体感し、長く愛着を持ち住み続け、さらに、次の住まい手へと引き継いでいける住まいを目指したものです。
一邸一邸、個性ある空間をリノベーションするブランドだからこそ、立地や空間の個性を丁寧に紐解き、住むことの心地よさを実感し、人生の本質を愉しむための住まいづくりを行います。
それは、歴史に培われた「家」の原点と向き合い、上質さを尊重し、タイムレスな価値を創造すること。
空間のゆとりを生み出し、細部まで丁寧に整えること。
時間の積み重ねとともに深みを増し愛着をもたらす素材を選定すること。
そして、光の動きや季節の移り変わりを美しく感じ、日常を豊かに感じられるシーンを持つ空間を目指すこと。
そうした住まいと暮らしの提案をしていきます。
物件概要
こちらの物件の販売は終了いたしました
メールマガジン会員
東京都心 × 100㎡ 超の物件情報紹介、自社分譲物件の優先案内のほか、 会員様のみにお伝えできる限定情報、イベントへのご招待など、 特別な情報をお届けいたします。
詳細・ご登録はこちら
more information
R100tokyo オーナー様向けサービス
Owners Club は、R100 tokyo でご契約いただいたオーナー様専用のサービスです。
詳細・ご登録はこちら
more information
『Curiosity』は、R100 tokyo が伝えたい「価値のある"モノ"や"コト"」を、
「東京/暮らし/デザイン/理念」の目線で紹介するウェブメディアです。