シャトー赤坂台

都心の利便性と豊かな緑が共存する赤坂エリア
南東向き3LDK 心地よく眺望が抜ける寛ぎの住まい

  • 赤坂・青山・麻布
  • 100~150 ㎡
  • 眺望良好
  • ヴィンテージ マンション

こちらの物件の販売は終了いたしました

物件画像1
物件画像2
物件画像3
物件画像4
物件画像5
物件画像6
物件画像7
物件画像8
物件画像9
物件画像10
物件画像11
物件画像12
物件画像13
物件画像14
サムネイル1
サムネイル2
サムネイル3
サムネイル4
サムネイル5
サムネイル6
サムネイル7
サムネイル8
サムネイル9
サムネイル10
サムネイル11
サムネイル12
サムネイル13
サムネイル14
1 / 14

information

物件情報

専有面積 :
122.27㎡(登記簿)
間取り :
3LDK+WIC+SIC
所在地 :
東京都港区赤坂8丁目

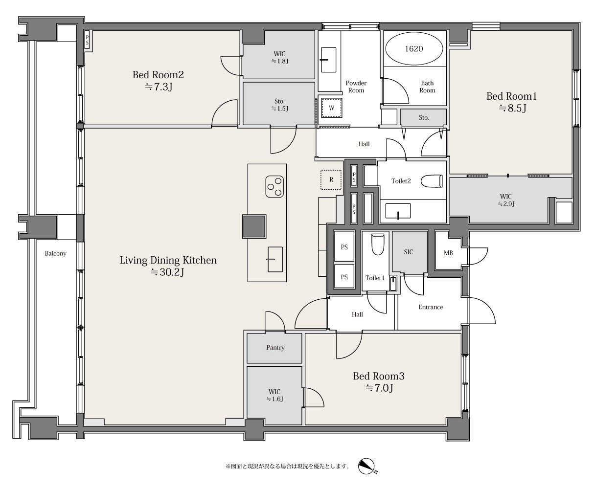
plan

間取り図

concept

コンセプト

都心の利便性と豊かな緑が共存する赤坂エリア
南東向き3LDK 心地よく眺望が抜ける寛ぎの住まい

都心の中枢に位置しながら、喧騒から離れた穏やかな住環境が魅力の赤坂エリア。明治神宮外苑や檜町公園がほど近く、豊かな緑のある赤坂8丁目の高台に建つ「シャトー赤坂台」。東京ミッドタウンや赤坂サカスが徒歩圏内にあり、青山・六本木・霞が関など都心各所へのアクセスも良好です。本マンションからR100 tokyo デザインの一邸をご紹介します。

本邸は6階・南東向き、120平米超の3LDK+WIC+SICの間取りの一邸。リビングダイニングキッチンは約30畳のゆとりがあり、南東向きバルコニー側は心地よく視線が抜ける眺望で、ご家族でお寛ぎいただける空間です。

オリジナルのオープンキッチンは、落ち着いた色調の左官材で仕上げた柱がアクセントに。また、柱によって緩やかにリビングダイニングと区切られるため、空間に一体感を保ちつつも程よい独立性も確保しました。キッチン横にはパントリーや納戸があり、収納が充実。また本邸は全洋室にウォークインクローゼットを備えており、住戸全体でも充分な収納力があります。

都心立地で、広い空と街を臨む眺望。そして新校舎で人気が高まる赤坂学園の学区にあり、お子様の教育環境をご検討されている方にもお勧めです。

赤坂エリアをもっと詳しく知りたい方は、こちらの記事をお読みください。
R100 tokyo WEBマガジン-Curiosity
国際色豊かな邸宅街・赤坂が内包する歴史のドラマ

 

※所在階:分譲時パンフレットでは6階ですが、登記簿では7階です。
※告知事項あり。詳細はお問い合わせください。

■駐車場:空なし (40,000円/月) 
■駐輪場:空あり(6,000円/年)  ※サイズ制限あり
■バイク置場:空なし (30,000円/月)
■トランクルーム:空なし(2,900~4,900円/月)※税抜き 
■ペット飼育:不可
■施設・サービス:オートロック無し・フロント
※駐車場等の空き状況は2025年8月4日時点です。

 

【リノベーション内容】
<間取り>
●間取り変更(4LDK⇒3LDK+WIC+SIC+納戸+パントリー)
<玄関>
●玄関床交換/SIC新設
<キッチン>
●オリジナルキッチン造作/IHクッキングヒーター/浄水器付シャワー水栓/食器洗浄機
<洗面>
●洗面台交換(洗面,トイレ2)/洗濯パン・水栓交換/収納新設
<浴室>
●ユニットバス交換/浴室暖房換気乾燥機新設/給湯器交換(追い炊き機能有)
<トイレ>
●洗浄機能付トイレ交換(トイレ1,2)/収納新設(吊戸棚)/手洗い器新設
<全体>
●フローリング新設(LD・K・廊下・洋室)
●水まわり床フロアタイル新設(洗面・トイレ・廊下一部)
●壁クロス新規(全室)
●壁左官新規(一部のみ)
●建具交換(全部)
●収納扉交換(全部)
●配管交換(給水管・排水管・給湯管・追炊き管 )
●断熱材吹き増し(壁・天井)(全部)
●二重サッシ新設(全部)
●R1検査実施


【Life information】
<学区>
赤坂学園赤坂小学校:約220m(徒歩3分) 
赤坂学園赤坂中学校:約400m(徒歩5分)
<ショッピング施設>
セブン-イレブン 赤坂6丁目店:約450m(徒歩6分)
東京ミッドタウン:約700m(徒歩9分)
プレッセプレミアム 東京ミッドタウン店:約900m(徒歩12分)
赤坂Bizタワー SHOPS&DINING:約800m(徒歩10分)
<公園>
檜町公園:約500m(徒歩7分)
一ツ木公園:約500m(徒歩7分)

R100 tokyo による企画・リノベーション

本邸は R100 tokyo の企画・リノベーション物件です。R100 tokyo は、ブランドビジョン「本質的な価値感が表現される暮らし」と、空間作りのコンセプト「Crafted Home」に基づいた住まいづくりを行っています。それは、住まい手自らが本質的な心地良さ・豊かさを体感し、長く愛着を持ち住み続け、さらに、次の住まい手へと引き継いでいける住まいを目指したものです。

一邸一邸、個性ある空間をリノベーションするブランドだからこそ、立地や空間の個性を丁寧に紐解き、住むことの心地よさを実感し、人生の本質を愉しむための住まいづくりを行います。

それは、歴史に培われた「家」の原点と向き合い、上質さを尊重し、タイムレスな価値を創造すること。
空間のゆとりを生み出し、細部まで丁寧に整えること。
時間の積み重ねとともに深みを増し愛着をもたらす素材を選定すること。
そして、光の動きや季節の移り変わりを美しく感じ、日常を豊かに感じられるシーンを持つ空間を目指すこと。

そうした住まいと暮らしの提案をしていきます。

details

物件概要

専有面積
122.27㎡(登記簿)
間取り
3LDK+WIC+SIC
所在地
東京都港区赤坂8丁目
情報更新日
2026年2月24日

sold out

こちらの物件の販売は終了いたしました

お探しの物件がない方は

こちらに掲載のない物件やご希望にあう物件がない方は、 物件探しからお手伝いいたします。

R100 tokyo the club

R100 tokyo the club

メールマガジン会員

東京都心 × 100㎡ 超の物件情報紹介、自社分譲物件の優先案内のほか、 会員様のみにお伝えできる限定情報、イベントへのご招待など、 特別な情報をお届けいたします。

owners club

R100tokyo オーナー様向けサービス

Owners Club は、R100 tokyo でご契約いただいたオーナー様専用のサービスです。 日々の暮らしを豊かにする体験やサービスを、ご優待とあわせてご紹介いたします。