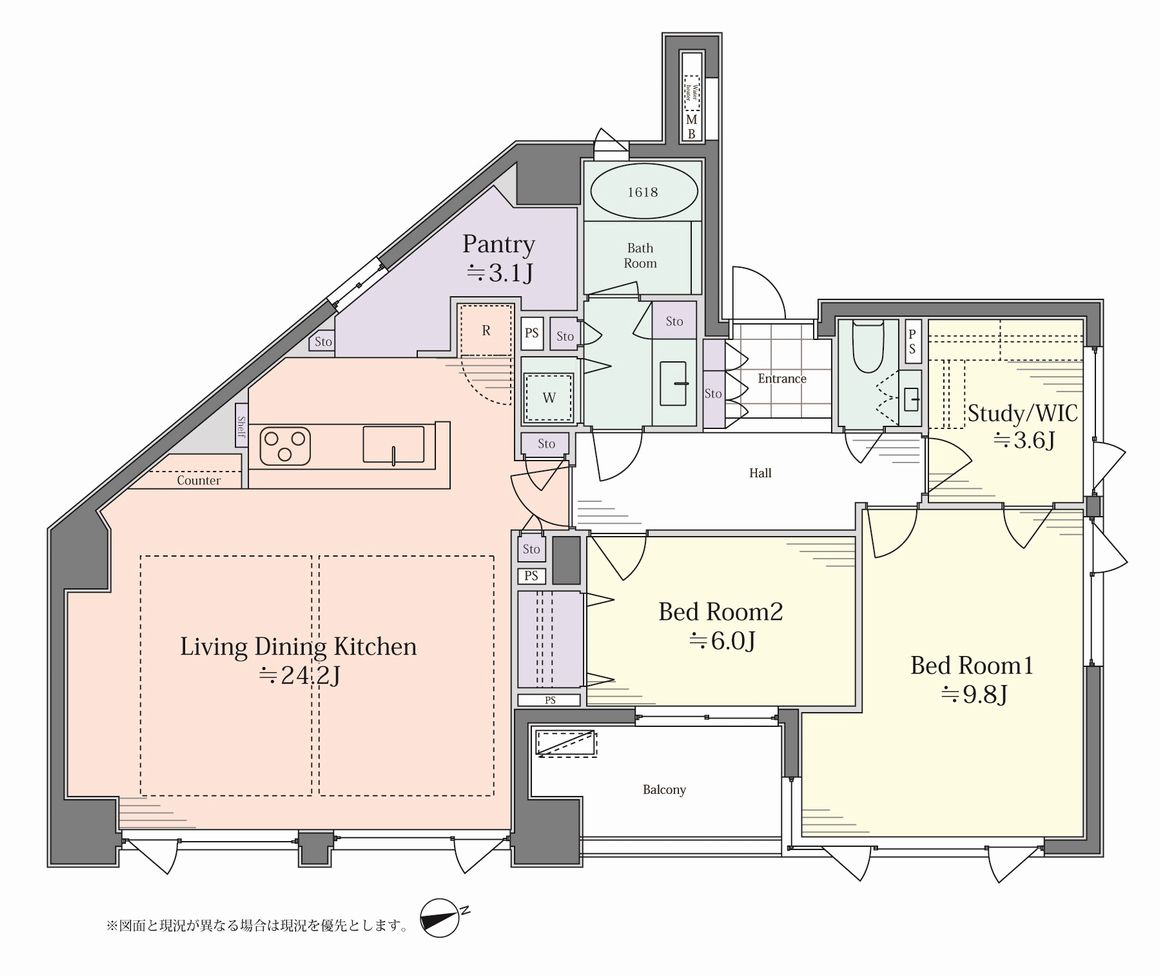
面積
99.46㎡
間取り
2LDK+WIC
所在地
東京都港区南麻布5丁目
有栖川宮記念公園の緑と東京の空の近くで叶える暮らし
【 ロケーション 】
“モデルノ・オパス有栖川”は、南麻布のヒルトップに位置し、広大な緑が広がる有栖川宮記念公園を中心とした、都心の中でも屈指の住環境を誇るエリアにあります。
時代と共に刻々とその姿を変え、インターナショナルな空気と先端のモード・カルチャーが混ざり合う南麻布5丁目。東京で彩り溢れた豊かに暮らすために必要なものが揃ったこの地で叶えたいのはどんな暮らしですか。
【 住戸のポイント 】
この問いに応えるのが、この住戸が持つ特筆すべき魅力のひとつです。東側の窓に目を向ければ、歴史ある有栖川宮記念公園の広大な緑、さらに視線を伸ばせば東京タワーが臨める。日々の暮らしの中で、心癒す自然の恵みと都心に住む贅沢さを享受できるこの住空間は、たやすく手に入るものではありません。
LDKに採用された表情豊かなオークのフローリングとキッチンカウンターに施された落ち着いたタイルからは、上質なマテリアルが与えるアクセントに豊かな暮らしへの期待感が膨らみます。
その他の事例紹介
















































































































































































![瀬田ファースト [H邸]](https://r100tokyo.com/cms_ver2/wp-content/uploads/2020/09/main2_700_470-1.jpg)




















































