目白ガーデンヒルズ

豊かな緑と都心の利便性が共存する文教地区の静謐な住まい

  • 文京・目白
  • 100~150 ㎡

こちらの物件の販売は終了いたしました

物件画像1
物件画像2
物件画像3
物件画像4
物件画像5
物件画像6
物件画像7
物件画像8
物件画像9
物件画像10
物件画像11
物件画像12
物件画像13
物件画像14
物件画像15
物件画像16
物件画像17
物件画像18
物件画像19
サムネイル1
サムネイル2
サムネイル3
サムネイル4
サムネイル5
サムネイル6
サムネイル7
サムネイル8
サムネイル9
サムネイル10
サムネイル11
サムネイル12
サムネイル13
サムネイル14
サムネイル15
サムネイル16
サムネイル17
サムネイル18
サムネイル19
1 / 19

information

物件情報

専有面積 :
116.19㎡※トランクルーム面積1.70㎡含む
間取り :
3LDK+2WIC
所在地 :
東京都豊島区目白1丁目

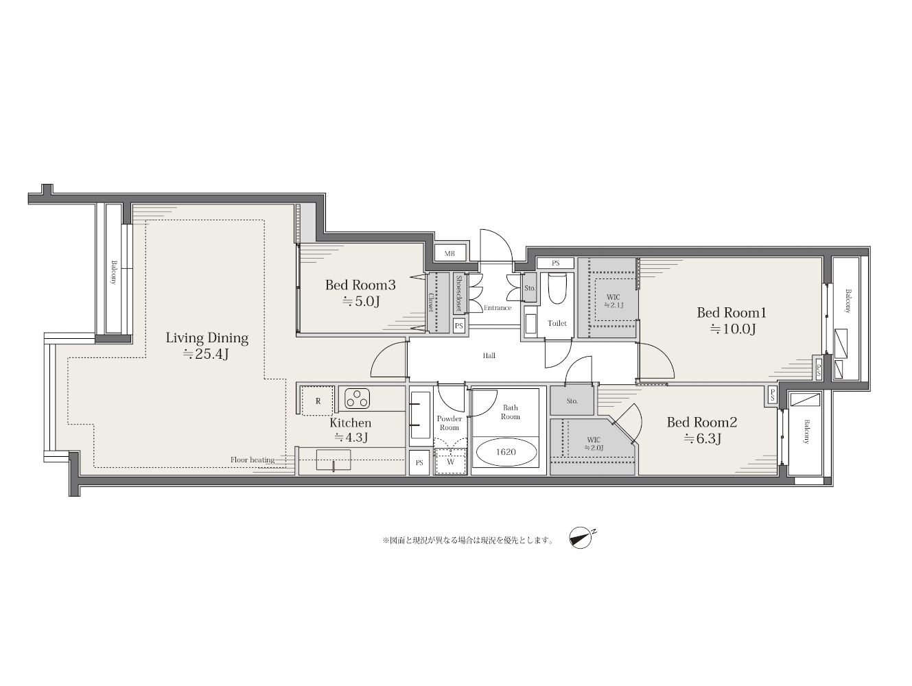
plan

間取り図

concept

コンセプト

豊かな緑と都心の利便性が共存する文教地区の静謐な住まい

学習院大学敷地に隣接した文教地区に佇む「目白ガーデンヒルズ」。緑に囲まれた閑静な住宅街にあり、豊島区内でも有数のハイグレードマンションです。歴史と品格を併せ持つ由緒正しい目白エリアにある本マンションから、R100 tokyoデザインのリノベーション住戸をご紹介します。

8階南向きに位置する本邸は、眺望が抜け、洋室からは隣地の学習院大学キャンパスのあふれる緑の景色が眼下に広がっています。リビングダイニングの開口部は、天井までの窓一面のハイサッシになっており、室内に暖かい日差しが心地よく差し込みます。

元々クローズ型だったキッチンは扉を外してリビング空間とのつながりをつくり、より自然にご家族とコミュニケーションを行えるように整えました。キッチン壁面にはモダンな色味が印象的な大きめのタイルを採用したことで、優雅な雰囲気を醸しています。
3つの洋室はゆとりある広さで、内装は本マンションに相応しい、落ち着いたトーンで設えています。また洋室の2つのWICに加えて、季節家電等の収納に便利な納戸が備えており、充実した収納力です。

文教地区の静寂と、空を臨む開放的な眺望。都心の利便性も兼ね備える目白の住まいです。

 

将来のヴィンテージマンションに相応しい風格

「目白ガーデンヒルズ」は2006年(平成18)年築・総戸数396戸、面前の道路のカーブに合わせたつづら折りの外壁が圧巻の佇まいの邸宅マンションです。周辺の景観に調和する外観デザインを保ちながらも、日本初の免震工法の実現や大使館に匹敵するほどの強固なセキュリティシステムの導入等が高く評価され、新築竣工年の2006年にはグッドデザイン賞を受賞しています。

本マンションはJR山手線「目白」駅より徒歩9分、「高田馬場」駅より徒歩8分と交通利便性の高い立地。都電荒川線「学習院下」駅も徒歩圏内でご利用可能です。周辺の目白エリアは多くの教育施設が集まる文教地区。本マンションは豊島区で人気の「目白小学校」も学区内です。

 

目白エリアをもっと詳しく知りたい方は、こちらの記事をお読みください。
R100 tokyo WEBマガジン-Curiosity
■イチョウ並木が続く“文教通り”の思い出……泉麻人が綴る「目白」
https://r100tokyo.com/curiosity/in-this-place/210301/


■駐車場:2023年11月21日現在空き有り(22,500円~30,000円/月)
■駐輪場:2023年11月21日現在空き無し (300円/月)
■電動アシスト付き駐輪場:2023年11月21日現在空き無し (700円/月)
■バイク置場:2023年11月21日現在空き無し(2,000円/月)
■ミニバイク置場:2023年11月21日現在空き無し(1,000円/月)
■ペット飼育:可(細則あり・ペットクラブ要入会※入会金5,000円)
■セキュリティ
・オートロックシステム(TVカメラ付き集合玄関機設備)
・防犯カメラ
・機械警備設備

■共用施設
・ゲストルーム
・ゲスト用駐車スペース
・マルチホール


【Life information】

<学区>
豊島区立目白小学校:約750m(徒歩10分)
豊島区立千登世橋中学校:約400m(徒歩5分)
<ショッピング施設>
オーケー 高田馬場店:約230m(徒歩3分)
KINOKUNIYA Sutto 目白駅店:約750m(徒歩10分)
クイーンズ伊勢丹 目白店:約750m(徒歩10分)
<公園>
おとめ山公園:約450m(徒歩6分)
新宿区立清水川橋公園:約400m(徒歩5分)
<その他>
ファミリーマート 目白南店:約140m(徒歩2分)

 

R100 tokyo による企画・リノベーション

本邸は R100 tokyo の企画・リノベーション物件です。R100 tokyo は、ブランドビジョン「本質的な価値感が表現される暮らし」と、空間作りのコンセプト「Crafted Home」に基づいた住まいづくりを行っています。それは、住まい手自らが本質的な心地良さ・豊かさを体感し、長く愛着を持ち住み続け、さらに、次の住まい手へと引き継いでいける住まいを目指したものです。

一邸一邸、個性ある空間をリノベーションするブランドだからこそ、立地や空間の個性を丁寧に紐解き、住むことの心地よさを実感し、人生の本質を愉しむための住まいづくりを行います。

それは、歴史に培われた「家」の原点と向き合い、上質さを尊重し、タイムレスな価値を創造すること。
空間のゆとりを生み出し、細部まで丁寧に整えること。
時間の積み重ねとともに深みを増し愛着をもたらす素材を選定すること。
そして、光の動きや季節の移り変わりを美しく感じ、日常を豊かに感じられるシーンを持つ空間を目指すこと。

そうした住まいと暮らしの提案をしていきます。

details

物件概要

専有面積
116.19㎡※トランクルーム面積1.70㎡含む
間取り
3LDK+2WIC
所在地
東京都豊島区目白1丁目

sold out

こちらの物件の販売は終了いたしました

お探しの物件がない方は

こちらに掲載のない物件やご希望にあう物件がない方は、 物件探しからお手伝いいたします。

R100 tokyo the club

R100 tokyo the club

メールマガジン会員

東京都心 × 100㎡ 超の物件情報紹介、自社分譲物件の優先案内のほか、 会員様のみにお伝えできる限定情報、イベントへのご招待など、 特別な情報をお届けいたします。

owners club

R100tokyo オーナー様向けサービス

Owners Club は、R100 tokyo でご契約いただいたオーナー様専用のサービスです。 日々の暮らしを豊かにする体験やサービスを、ご優待とあわせてご紹介いたします。