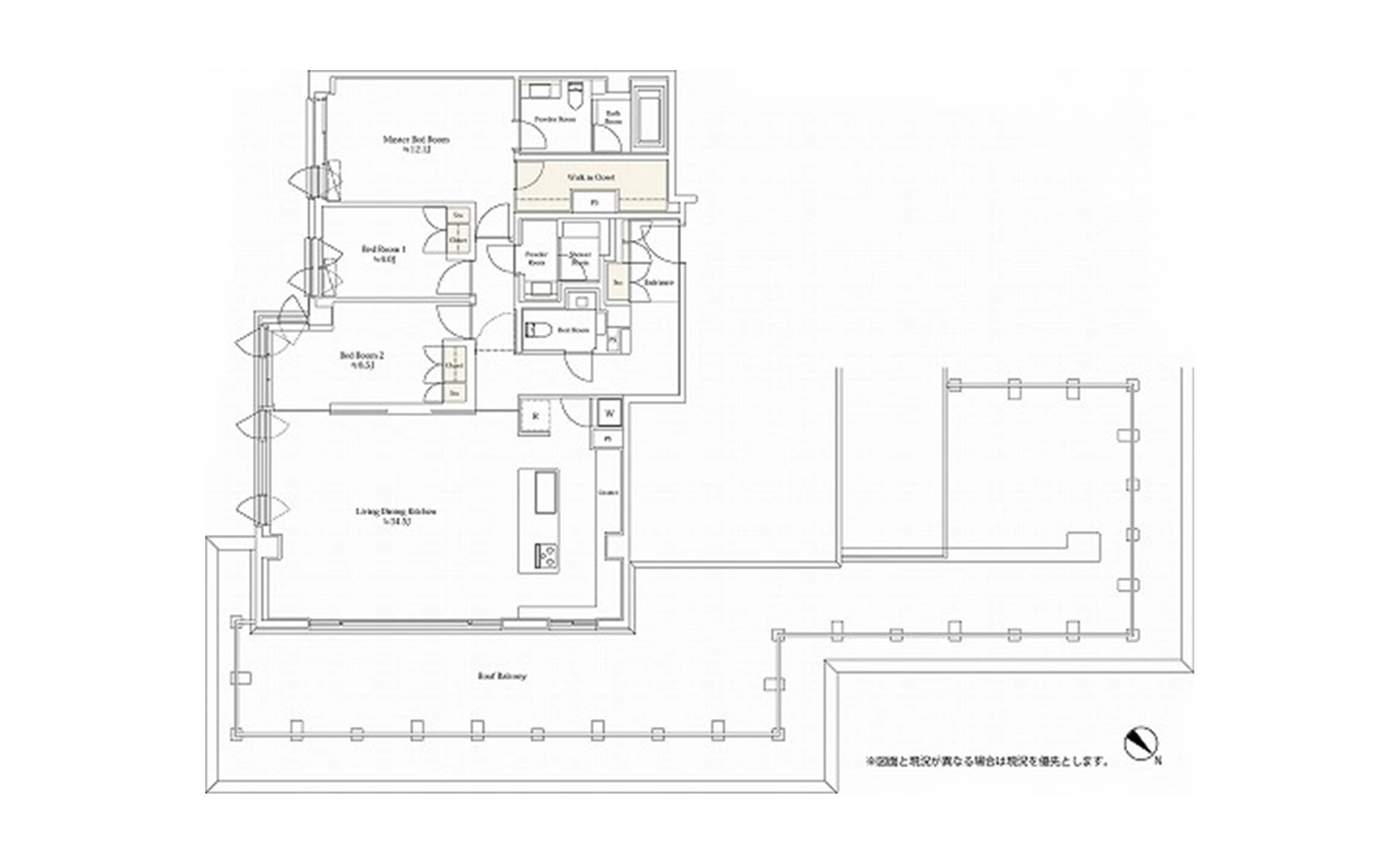
面積
145.73㎡
間取り
3LDK+WIC+RoofBalcony
所在地
東京都港区南麻布5丁目
「大自然」と「東京夜景」 有栖川公園に寄り添う極上借景を臨む贅沢を。
港区南麻布の高台に在り、有栖川公園に寄り添うように佇む「有栖川ホームズ」。
東を向けば、「六本木ヒルズ」「東京タワー」など「東京」のシンボルたちが競演する艶やかな夜景。
南を向けば、歴史の重みを感じずにはいられない有栖川公園の深く広大な自然。
思わず溜息さえもれてしまう程に、感動的な景色を臨む一邸です。
将来性を疑う余地はないほど立地条件に恵まれ、その恩恵を授かるのは低層住宅ゆえに限られた数邸のみ。
さらに最上階のペントハウス145㎡、ルーフバルコニー78㎡、類を見ない贅沢に唯一無二の資産価値を感じずにはいられません。
室内空間は2つの極上借景に寄添うようにシンプルに、丁寧に、上質に。
吉野杉のルーバーを施した天井面は時間とともに表情を変え、
昼は有栖川公園の大自然と共演し、高原の避暑地を訪れたかのような清々しさを、
夜は東京夜景と共演し、星付きホテルのレストランのような艶やかさを、
日常生活の中に、非日常の体験を叶えてくれます。
その他の事例紹介
























































































































































































![瀬田ファースト [H邸]](https://r100tokyo.com/cms_ver2/wp-content/uploads/2020/09/main2_700_470-1.jpg)




















































