「ウッドヴィル麻布」
【歴史ある邸宅街「麻布霞町」】
「西麻布3丁目」、本エリアは別名「麻布霞町」とも呼ばれ、都会の喧騒から外れ、周辺にはグローバルな教育施設や医療施設をはじめとした恵まれた住環境を享受できる、港区屈指の高級住宅街の一つです。
古くは武家屋敷が建ち並び、広大な敷地は現在、高級マンションや邸宅へ姿を変え閑静な住宅街を形成しております。
その中でも、豊かな敷地の緑に囲まれ、石畳のエントランスアプローチが一際目を引く、重厚感を放つ低層マンションが「ウッドヴィル麻布」です。
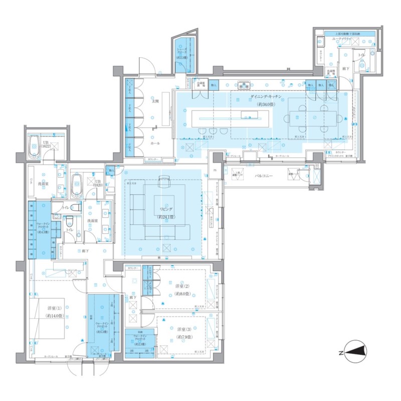
【敷地内の樹木を望む南西角住戸】
広大な敷地を囲む、豊かな緑が魅力の本マンション。
本住戸の所在階が4階であることから、目線の高さには敷地内の樹木たちが広がり、都心に居ながらも、まるで森の中で暮らしているような錯覚に囚われます。
また玄関へ入りすぐに広がるエントランスはゆとりを持ったシンメトリーのデザイン設計、大切な来訪者を出迎えるのに相応しい空間となっております。
専有面積は、都心では大変希少な、238㎡という広さを誇り、約58帖のLDKはダイニングキッチンとリビングをセパレートすることでリビング以降のプライベートの空間を残しながらも、申し分ない広さを実現しました。
質感は細部までこだわり、足触りの良い天然の床素材から、壁面は陽の光を優しく吸収する塗装を中心に施し、日々の暮らしの中で経年による変化を意識した設えとなっております。
【一棟全体をリノベーションし価値向上】
外国人向け高級賃貸マンションとして国内外の富裕層から高い評価を受けていた本マンション。更なる価値向上を目指し、2017年に共用部含めた一棟全体のリノベーションを実施しました。
断熱性や配管設備などの機能も現代の基準に照らし合わせ、向上させ、築後32年の住宅ながら、環境先進国ドイツの基準に匹敵する断熱性能を有しており、日本の集合住宅の上位0.1%以内にあたるレベルを実現しています。
また、敷地を囲む樹木たちは30年超の時の流れ経てより「深み」を増し、日本の趣が感じられる共用部デザインは「継承」をするとともに新たな価値を付加することで現在では再現が困難な唯一無二のデザイン性を有する高級分譲マンションへと生まれ変わりました。
【充実の館内サービス】
マンションエントランスを抜けると日中はコンシェルジュが常駐し、日々の生活に特別なサポートを受けられます。
落ち着きと洗練さを兼ね備えた「ラウンジルーム」では、談笑に花を添え、屋上は共用部として居住者へ開放しているため、ご友人を招いてパーティーを催す場としても活用が可能です。
また、お車をご利用の場合も、各住戸に一区画「平置きの屋内駐車場」が付設されており、都内各所へのアクセスに便利な立地を更に享受することが叶います。




















































































































































































![瀬田ファースト [H邸]](https://r100tokyo.com/cms_ver2/wp-content/uploads/2020/09/main2_700_470-1.jpg)




















































