
柔らかな光に包まれ、心落ち着く住まい
都心部に位置しながら、緑も豊かな住環境が魅力の赤坂エリア。明治神宮外苑や檜町公園がほど近く、豊かな緑のある赤坂8丁目の高台に建つ「グランフォルム赤坂」からR100 tokyo デザインの一邸をご紹介します。
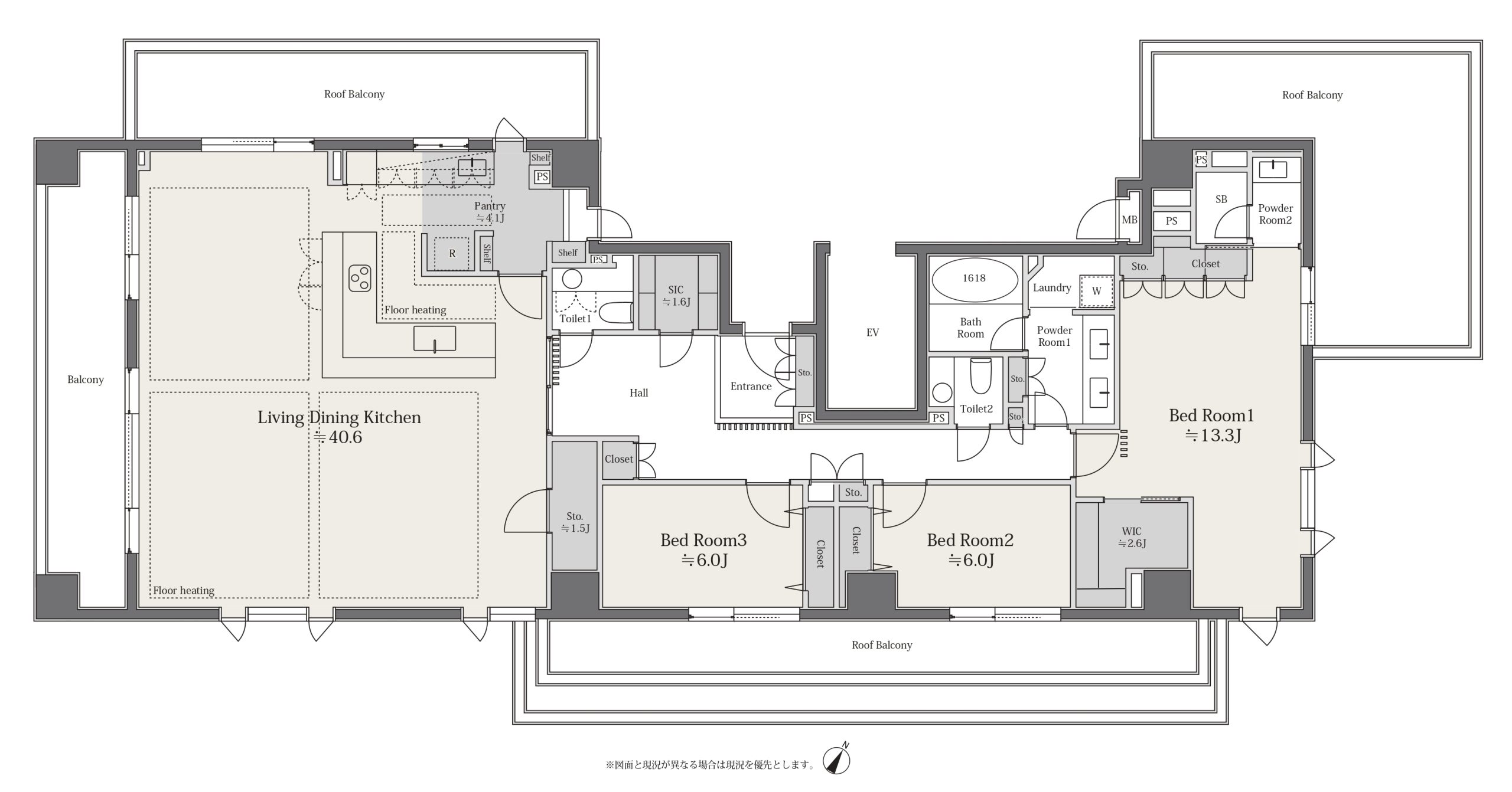
本邸は4方角住戸・全室バルコニー付き・170平米のゆとりある一邸。内装をグレートーンでコーディネートした、穏やかで落ち着きのある上質な住まいです。
約40畳のリビングダイニングキッチンは、ご家族がゆったりと過ごせる寛ぎの空間。L字型のオープンキッチンには、約4畳のパントリーとサブシンク付きの作業台を備え、日々の家事をスムーズにしてくれます。
室内の照明計画は間接照明を中心に構成され、柔らかな光に包まれる落ち着いた空間に仕上げました。リビングや寝室、玄関などに取り入れたルーバーが、軽やかな抜けと空間のつながりをもたらします。
7階フロアは本邸のみのため、静寂とプライバシーを享受できる住環境です。ぜひ、現地をご覧ください。
設計: アトリエエツコ 一級建築士事務所 山田悦子

山田悦子主宰の建築士事務所。ハイグレードなリノベーションや高級戸建て住宅をはじめ、オフィス、店舗、クリニック、家具の設計・監理を手がける。各種アワード受賞、雑誌掲載多数。
設計者について詳細はこちら
R100 tokyo WEBマガジン-Curiosity
■建築家・山田悦子氏が語る「住まいと人の幸せな関係」
本マンションは東京ミッドタウンや赤坂サカスが徒歩圏内にあり、青山・六本木・霞が関など都心各所へのアクセスも良好です。また新校舎で人気が高まる赤坂学園の学区にあり、お子様の教育環境をご検討されている方にもお勧めです。
赤坂エリアをもっと詳しく知りたい方は、こちらの記事をお読みください。
R100 tokyo WEBマガジン-Curiosity
■上質な暮らしが息づく、東京の邸宅マンション街「赤坂・六本木」
■駐車場: 空あり (47,000~48,000円/月)
■駐輪場:空あり(200円/月)
■バイク置場:無
■トランクルーム:無
■ペット飼育:不可
■宅配ボックス・24時間ゴミ出し可
■セコムセキュリティー
※駐車場等の空き状況は2025年10月22日時点のものです。
【リノベーション内容】
<間取り>
間取り変更(3LDK+WIC+納戸⇒3LDK+Pantry+Laundry+SIC+WIC+納戸)
<玄関>
玄関床交換/収納新設/SIC新設
<キッチン>
オリジナルキッチン造作/IHクッキングヒーター/ガスコンロ/浄水器付シャワー水栓/食器洗浄機/電子コンベック/サブシンクカウンター
<洗面>
洗面台交換(洗面1,2)
オリジナル洗面台造作(洗面1)/洗濯パン・水栓新設/収納新設
<浴室>
ユニットバス新設(浴室のみ)/浴室暖房換気乾燥機新設(浴室のみ)/給湯器交換(浴室・シャワー室)(追い炊き機能有)
シャワー室新設
<トイレ>
洗浄機能付トイレ交換(トイレ1,2)/カウンター収納新設(トイレ1,2)/手洗い器新設(トイレ1,2)
<全体>
フローリング新設(LD・キッチン・廊下・洋室1・Pantry・納戸・WIC)
カーペット新設(洋室2,3)
水まわり床フロアタイル新設(洗面室1,2・Laundry・トイレ1,2・SIC)
壁クロス新規(全室)
建具交換(一部)
収納扉交換(全部)
天井カセット式エアコン交換(LD・洋室1,2,3)
床暖房新設(LD・キッチン)
配管交換(給水管・排水管・給湯管・追炊き管・ガス管 )
断熱材吹き増し(壁・天井)(一部)
R1検査実施
【Life information】
<学区>
港区立小中一貫教育校 赤坂学園 赤坂小学校:約600m(徒歩8分)
港区立小中一貫教育校 赤坂学園 赤坂中学校:約750m(徒歩10分)
<ショッピング施設>
ファミリーマート 青山外苑東通り店:約160m(徒歩2分)
セブン-イレブン 赤坂8丁目店:約400m(徒歩5分)
まいばすけっと 青山一丁目店:約300m(徒歩4分)
青山ツイン:約230m(徒歩3分)
東京ミッドタウン:約1,100m(徒歩14分)
<公園>
高橋是清翁記念公園:約240m(徒歩3分)
檜町公園:約900m(徒歩12分)
R100 tokyo による企画・リノベーション
本邸は R100 tokyo の企画・リノベーション物件です。R100 tokyo は、ブランドビジョン「Quiddity of Life~本質的な価値感が表現される暮らし」と、空間作りのコンセプト「Crafted Home」に基づいた住まいづくりを行っています。それは、住まい手自らが本質的な心地良さ・豊かさを体感し、長く愛着を持ち住み続け、さらに、次の住まい手へと引き継いでいける住まいを目指したものです。
一邸一邸、個性ある空間をリノベーションするブランドだからこそ、立地や空間の個性を丁寧に紐解き、住むことの心地よさを実感し、人生の本質を愉しむための住まいづくりを行います。
それは、歴史に培われた「家」の原点と向き合い、上質さを尊重し、タイムレスな価値を創造すること。
空間のゆとりを生み出し、細部まで丁寧に整えること。
時間の積み重ねとともに深みを増し愛着をもたらす素材を選定すること。
そして、光の動きや季節の移り変わりを美しく感じ、日常を豊かに感じられるシーンを持つ空間を目指すこと。
そうした住まいと暮らしの提案をしていきます。
<売主・広告主>
株式会社リビタ
宅地建物取引業者免許 東京都知事(5)第84602号
一級建築士事務所 東京都知事第51167
(社)東京都宅地建物取引業会会員
東京都目黒区三田一丁目12番23号
TEL 03-5656-0080
情報更新日:2025年11月6日
次回更新予定日:2025年11月20日
- 建物名称
- グランフォルム赤坂
- 交通/最寄駅
- 東京メトロ銀座線、半蔵門線、都営大江戸線「青山一丁目」駅徒歩4分、東京メトロ千代田線「乃木坂」駅徒歩10分、東京メトロ千代田線 「赤坂」駅徒歩14分
- 所在地
- 東京都港区赤坂8丁目
- 価格
- 8億9,800万円(税込)
- 建築年
- 1999年(平成11年)8月
- リノベーション
竣工年 - 2025年(令和7年)10月
- 専有面積
- 171.50㎡
- バルコニー
- バルコニー:16.2㎡、ルーフバルコニー:60.3㎡
- 専用庭
- --
- その他面積
- ポーチ:2.7㎡
- 間取り
- 3LDK+WIC+SIC+Pantry
- 総戸数
- 23戸
- 建物/所在階
- 地下1階付8階建/7階
- 建物構造
- 鉄骨鉄筋コンクリート造陸屋根
- 品質基準
-
R1住宅

- 権利形態
- 所有権
- 管理費
- 72,400円/月
- 修繕積立金
- 70,000円/月
- 地代
- --
- その他費用
- ルーフバルコニー使用料:1,700円/月、CATV使用料:700円/月、町会費100円/月
- 現況
- 空室
- 引渡
- 2026年4月以降
- 取引形態
- 売主
- 管理形態
- 全部委託管理/日勤
- 管理会社
- 大和ライフネクスト株式会社
物件のお問合せや、ご内覧希望は下記までご連絡ください。










































