軽井沢|中軽井沢千ヶ滝西区 戸建て

歴史ある別荘地の景観を保つ中軽井沢・千ヶ滝エリア
国有林を望む、安らぎの住まい

  • その他
  • ~100㎡

R100 tokyo 会員様を対象とした『住みたい東京都心のヴィンテージマンションアンケート調査』の結果が結果がまとまりました。webマガジン『Curiosity』にて考察と併せ、お届けしてまいります。(計4回予定)ぜひご一読くださいませ。

物件画像1
物件画像2
物件画像3
物件画像4
物件画像5
物件画像6
物件画像7
物件画像8
サムネイル1
サムネイル2
サムネイル3
サムネイル4
サムネイル5
サムネイル6
サムネイル7
サムネイル8
1 / 8

information

物件情報

専有面積 :
土地:355.18㎡(約107.44坪)/建物:96.88㎡(約29.31坪)
価格 :
5,500万円(税込)
所在地 :
長野県北佐久郡軽井沢町長倉
取引態様 :
媒介

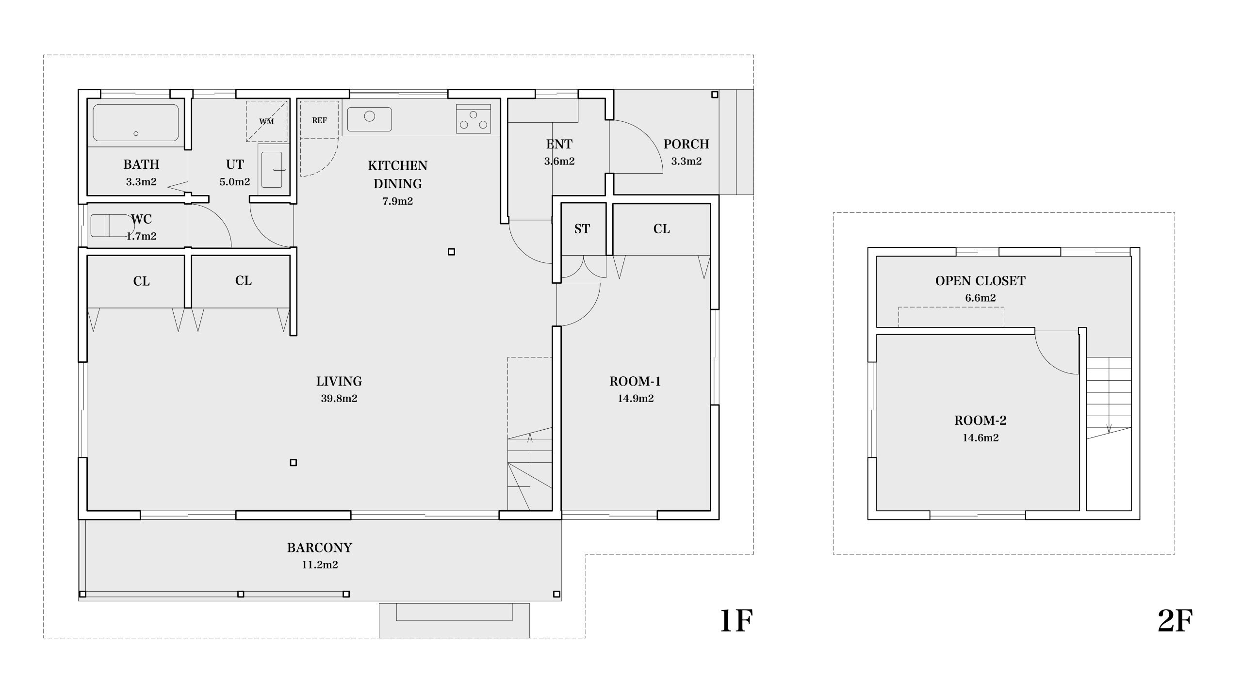
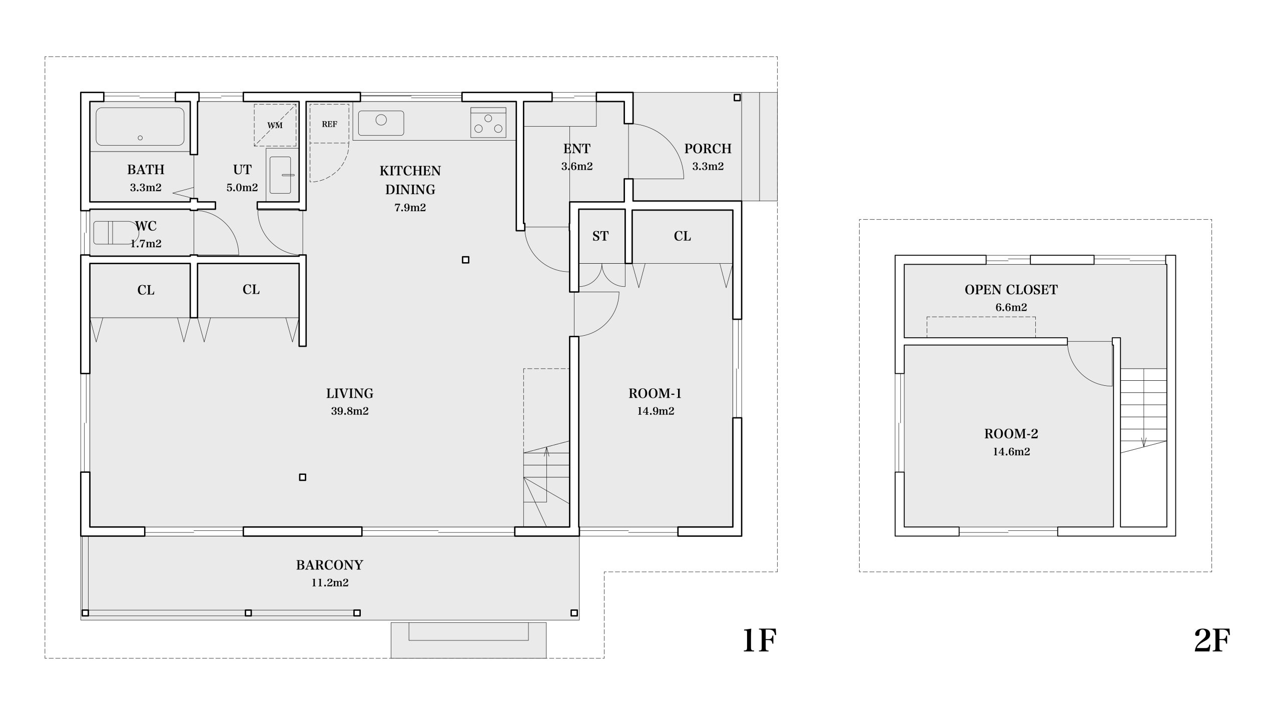
plan

間取り図

concept

コンセプト

歴史ある別荘地の景観を保つ中軽井沢・千ヶ滝エリア
国有林を望む、安らぎの住まい

東京の住まいに加え、「もう一つの拠点」をお探しの方に、R100 tokyo からお勧めの一邸をご紹介いたします。
近年、都心とは別に自然と文化とに触れることができる場所として、改めて注目を集めている軽井沢エリア。かつては「別荘」として夏季や冬期のステイを目的とした場所を持つことが一つのステータスとされていましたが、今はかつてよりも移動も頻繁にスムーズに。週末ごとに訪れたり、平日・週末の別なく行き来する方も多くなりました。多数の拠点を行き来しながら暮らすことは、一つのスタイルとして定着してきています。

本物件が立地する中軽井沢千ヶ滝西区は、西武グループが軽井沢エリアの開発を進めた拠点としての歴史を持ち、豊かな森林に囲まれ街中の喧騒から切り離されたような静けさがあり、かねてより人気の高い別荘地です。付近の町道沿いの街路には、軽井沢別荘地の特徴である「もみの大樹」が作り出す緑の回廊が続き、千ヶ滝別荘地の顔とも言えるシンボリックな景観が続きます。大型スーパーツルヤ、とんぼの湯・千ヶ滝温泉などの施設が利用可能な利便性の高い生活環境です。

本物件は軽井沢の自然に調和する、木材のあたたかみに包まれた2LDKの住まい。目の前には国有林の豊かな緑を望む、心安らぐ住環境が広がります。生活利便性を確保しながら、軽井沢らしい別荘を保有したい方にお勧めの物件です。


◆2025年12月完了
 水回り設備交換:キッチン・浴室・トイレ
 内装リフォーム:壁・床・全室
 その他リフォーム:外壁・屋根・ウッドデッキ

※こちらの物件はパートナー会社YUSAY株式会社の売主物件です。
<売主>
長野県知事(1)第005901号
YUSAY(株)
〒389-0111 長野県北佐久郡軽井沢町大字長倉5314-4 TEL:050-5473-8723


こちらの物件はR100 tokyo からご紹介させていただき、現地でのご案内やご契約に関しては、軽井沢エリアのパートナー会社が担当いたします。
※株式会社リビタはご紹介のみで仲介業務は担当いたしません。
 お問合せ、ご案内などパートナー会社にお気軽にご連絡ください

■ パートナー会社

YUSAY株式会社
長野県北佐久郡軽井沢町長倉5314-4
宅地建物取引業免許:長野県知事(1)第5901号
担当:曽(ソ)
Mobile:  080-9420-8460 (9:30-18:00) 
定休日:水・日 ※ご案内は日曜日も可能

ぜひお問い合わせをお待ちしております。

 

(物件概要追記事項)

・地目:宅地
・計画区域:都市計画区域内
・用途地域:第一種低層住居専用地域
・建ぺい率:30%
・容積率:50%
・主な接道:西側幅員約5.4m
・電気:中部電力
・水道:私営水道(西武不動産プロパティマネジメン
・ガス:個別プロパンガス
・雑排水・汚水:個別浄化槽

renovation

リノベーション

リノベーション内容

■2025年12月リノベーション完了予定
水回り設備交換:キッチン・浴室・トイレ
内装リフォーム:壁・床・全室
その他リフォーム:外壁・屋根・ウッドデッキ

details

物件概要

建物名称
軽井沢|中軽井沢千ヶ滝西区 戸建て
所在地
長野県北佐久郡軽井沢町長倉
交通/最寄駅
しなの鉄道「中軽井沢駅」より約3.8km(車約8分)
販売価格
5,500万円(税込)
専有面積
土地:355.18㎡(約107.44坪)/建物:96.88㎡(約29.31坪)
バルコニー面積
-
専有庭
-
その他面積
ガレージ:12㎡
間取り
2LDK
総戸数
1戸
建物/所在階
2階建
建物構造
木造
権利形態
所有権
管理費
-
修繕積立金
-
地代
-
その他費用
-
建築年
1997年(平成9年)6月
リノベーション工事竣工
2025年12月リノベーション完了予定
現況
空室
引渡
相談
取引態様
媒介
管理形態
-
管理会社
-
情報更新日
2026年4月9日
次回更新予定日
2026年4月23日
<広告主>
株式会社リビタ
宅地建物取引業者免許 東京都知事(5)第84602号
一級建築士事務所 東京都知事第51167
(社)東京都宅地建物取引業会会員
東京都目黒区三田一丁目12番23号
TEL 03-5656-0080

contact

お問い合わせ

物件のお問い合わせや、内覧のご希望は下記までご連絡ください。

フリーコール -
営業時間 営業時間:9:30-18:00
定休日 水・日 ※ご案内は日曜日も可能
mobile 080-9420-8460
担当 パートナー会社:YUSAY株式会社 担当:曽(ソ)
※YUSAY株式会社:宅地建物取引業免許 長野県知事(1)第5901号
 所在地:長野県北佐久郡軽井沢町長倉5314-4