
ご家族で穏やかに過ごす170平米超のゆとりある住まい
都心近接ながら穏やかな暮らしが叶う浜田山エリアから、R100 tokyo デザインの一邸をご紹介します。
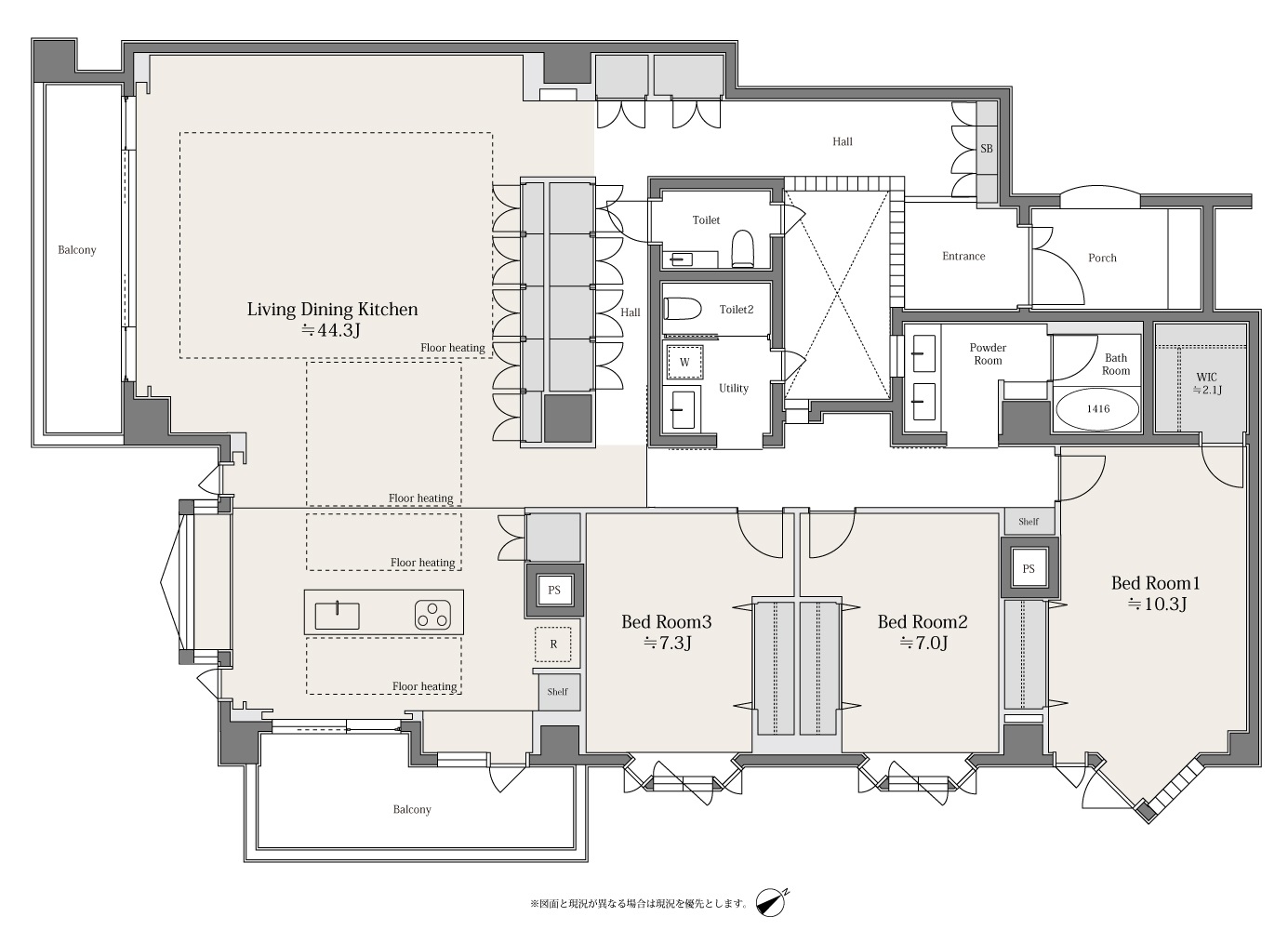
本邸は南西向き角住戸で、170平米超のゆとりある一邸です。玄関を入ると、正面のライトコートからガラスブロックを通したやわらかな光が差し込み、明るさと心地よさに包まれます。
リビングダイニングキッチンは約44畳の広さ。リノベーションにより間取りを整えたことで空間にゆとりをもたらし、お子様の遊び場やゲストを招いたパーティ利用など、多様なライフスタイルを叶えます。造作のアイランドキッチンは、窓から差し込む光と風を感じながら、ご家族で料理や団らんの時間を楽しめます。床材には磁器質タイルを採用し、空間に上質なアクセントを添えます。
リビングダイニングや廊下、各洋室に豊富に収納スペースを確保。またパウダールームには2ボウル洗面台を設け、多忙な朝の時間帯もスムーズにお使いいただけます。
都心の喧噪から一歩離れ、落ち着いた雰囲気に包まれる緑豊かな邸宅街・浜田山エリア。本マンションは和田堀公園に程近く、心地よい自然溢れる住環境にあります。またマンション共用部には1住戸1区画優先の使用権付き平置き駐車場があり、大型のSUV車なども駐車可能です。
浜田山エリアをもっと詳しく知りたい方は、こちらの記事をお読みください。
R100 tokyo WEBマガジン-Curiosity
■駅前の賑わいと、住宅街の静寂のコントラスト「浜田山・荻窪・吉祥寺」
※その他費用内訳:水道基本料:700円/月、電気基本料:10,500円/月、ガス基本料:250円/月、給湯基本料:3,450円/月、冷暖房基本料:10,500円/月
別途、共用部光熱水道費調整額(月により変動します。詳細はお問い合わせください。)
■駐車場:33,000円/月
■駐輪場: 無償
■ペット飼育:可 犬および猫(いずれか1匹)、小鳥、齧歯類等の小動物 (ペット飼育細則あり)
■セキュリティ
・防犯カメラ
・オートロック
※駐車場等の空き状況はお問い合わせください。
【リノベーション内容】
<間取り>
間取り変更(4LDK⇒3LDK)
<玄関>
玄関床交換/収納交換
<キッチン>
オリジナルキッチン造作/ガスコンロ/浄水器付シャワー水栓/食器洗浄機
<洗面>
洗面台交換(洗面室・ユーティリティ)/洗濯パン・水栓交換(ユーティリティ)/収納棚交換
<浴室>
ユニットバス交換/浴室暖房換気乾燥機交換
<トイレ>
洗浄機能付トイレ交換(トイレ1,2)/手洗い器交換(トイレ1のみ)
<全体>
フローリング交換(LD・廊下・洋室)
水まわり床タイル交換(K・トイレ1・洗面室)
フロアタイル交換(ユーティリティ)
壁クロス張替(全室)
壁塗装新規(一部のみ)
建具交換(全部)
収納扉交換(全部)
ファンコイルユニット交換(LDK・洋室1~3)
床暖房新設(LD・K)
配管交換(給水管・排水管:一部新規・給湯管:専有部飛込以降交換・追炊き管:なし・ガス管:既存切り回し )
R1検査実施
【Life information】
<学区>
■浜田山小学校:約550m(徒歩9分)
■高井戸中学校:約1400m(徒歩18分)
<ショッピング施設>
■ファミリーマート 杉並 浜田山四丁目店:約300m(徒歩4分)
■西友 浜田山店:約800m(徒歩10分)
■コモディイイダ浜田山店:約850m(徒歩11分)
■成城石井 浜田山店:約900m(徒歩12分)
<公園>
都立和田堀公園:約280m(徒歩4分)
宮元公園:約450m(徒歩6分)
<その他>
杉並南郵便局:約400m(徒歩5分)
R100 tokyo による企画・リノベーション
本邸は R100 tokyo の企画・リノベーション物件です。R100 tokyo のブランドビジョン「Quiddity of Life~本質的な価値感が表現される暮らし」と、空間作りのコンセプト「Crafted Home」に基づき、住まい手が本質的な心地良さ・豊かさを体感し長く愛着を持ち住み続け、次の住まい手へと引き継いでいける住まい作りを行っています。一邸一邸個性ある空間をリノベーションするブランドだからこそ、立地や空間の個性を丁寧に紐解き、住むことの心地よさを実感し、人生の本質を愉しむための住まいづくりを行います。歴史に培われた「家」の原点と向き合い、上質さを尊重し、タイムレスな価値を創造すること。空間のゆとりを生み出し、細部まで丁寧に整えること。時間の積み重ねとともに深みを増し愛着をもたらす素材を選定すること。光の動きや季節の移り変わりを美しく感じ、日常を豊かに感じられるシーンを持つ空間を目指すこと。そうした住まいと暮らしの提案をしていきます。
<売主・広告主>
株式会社リビタ
宅地建物取引業者免許 東京都知事(5)第84602号
一級建築士事務所 東京都知事第51167
(社)東京都宅地建物取引業会会員
東京都目黒区三田一丁目12番23号
TEL 03-5656-0080
情報更新日:2025年11月6日
次回更新予定日:2025年11月20日
- 建物名称
- インペリアル浜田山
- 交通/最寄駅
- 京王井の頭線「浜田山」駅徒歩12分、京王井の頭線「西永福」駅徒歩10分
- 所在地
- 東京都杉並区浜田山4丁目
- 価格
- 1億8,500万円(税込)
- 建築年
- 1989年(平成元年)7月
- リノベーション
竣工年 - 2025年(令和7年)10月
- 専有面積
- 177.82㎡
- バルコニー
- 17.75㎡
- 専用庭
- --
- その他面積
- ポーチ:4.75㎡
- 間取り
- 3LDK+WIC
- 総戸数
- 28戸
- 建物/所在階
- 地下1階付4階建/2階
- 建物構造
- 鉄筋コンクリート造陸屋根
- 品質基準
-
R1住宅

- 権利形態
- 所有権
- 管理費
- 62,200円/月
- 修繕積立金
- 42,968円/月
- 地代
- --
- その他費用
- その他費用合計:25,400円/月 ※
- 現況
- 空室
- 引渡
- 即時
- 取引形態
- 売主
- 管理形態
- 全部委託管理/日勤
- 管理会社
- 住友不動産建物サービス株式会社
物件のお問合せや、ご内覧希望は下記までご連絡ください。




























