concept

コンセプト

自然教育園の豊かな緑に抱かれた、白金台五丁目に佇む低層邸宅

都心の静謐と潤いが交差する、白金台の特等席
今回ご紹介するのは、「芝白金ヒルズ」です。港区白金台5丁目、国立科学博物館附属自然教育園の広大な緑に隣接する、まさに都心のオアシスと呼ぶにふさわしい立地に佇む低層レジデンスです。
周辺は、プラチナ通りの洗練された賑わいから一歩奥まった、落ち着きのある第一種低層住居専用地域。四季折々の自然を身近に感じながら、都心の利便性を享受できる稀少な住環境が整っています。

【室内】「Japandi style」が織りなす、130平米超の開放的なモダン空間
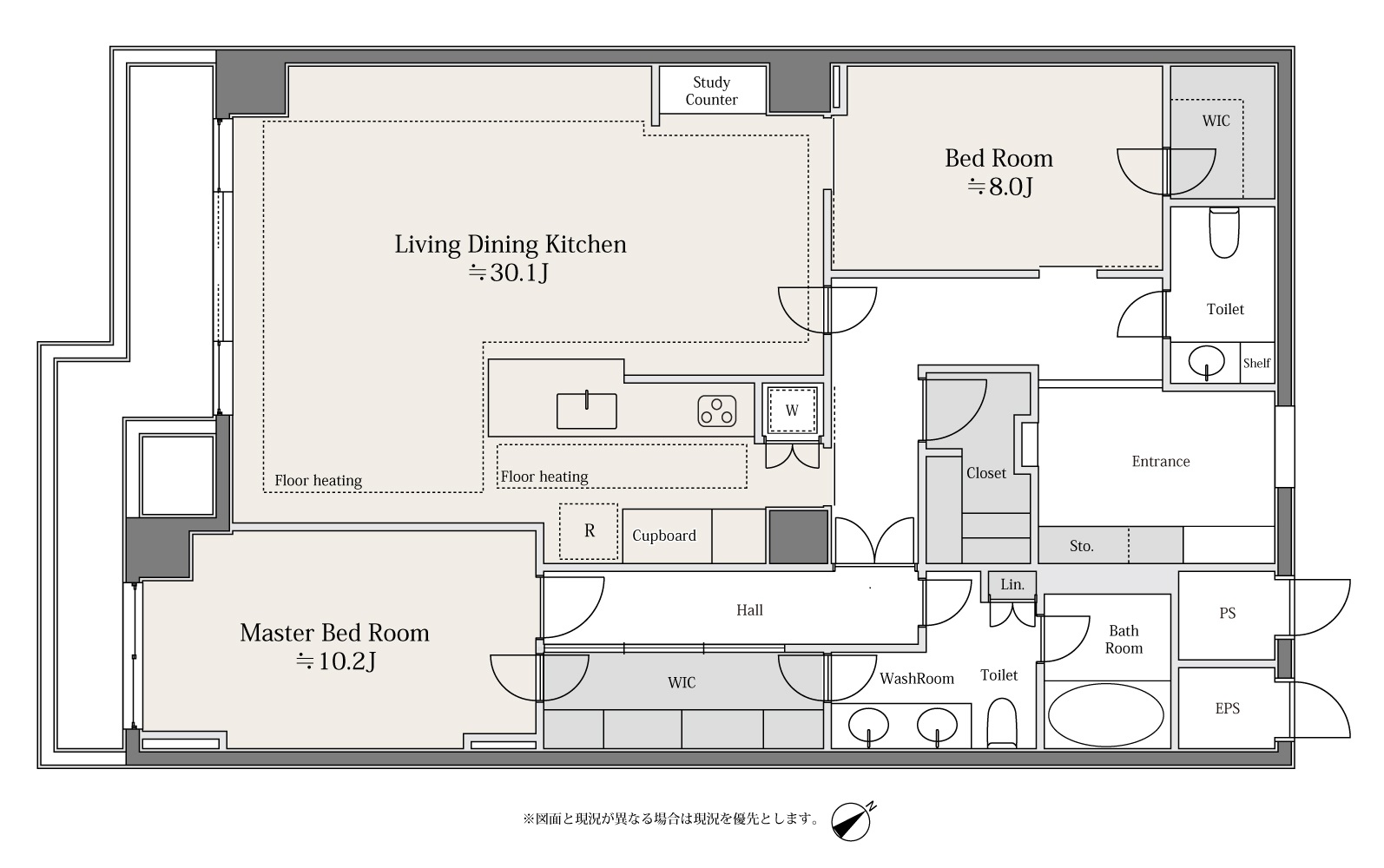
本邸は1階部分に位置する、専有面積138.62平米のゆとりある2LDK住戸です。室内はフルリノベーションが施され、和の静謐さと北欧の機能性が融合した「Japandi style(ジャパンディスタイル)」へと生まれ変わりました。
約30.1畳もの広さを誇るリビングダイニングキッチンは、床暖房を完備したタイル貼りの大空間。食洗機を備えた造作キッチンや、リビングの一角に設けられたスタディコーナーなど、現代のライフスタイルに寄り添う意匠が随所に凝らされています。
また、主寝室は約10.2畳、もう一方の寝室は約8.0畳を確保し、それぞれに大型のウォークインクローゼットを配置。2つのトイレや洗面室など、水回りも全面的に刷新されており、機能美と快適性を両立しています。

【建物】三菱地所分譲、プライバシーに配慮された地下駐車場付レジデンス
1985年竣工の建物は、三菱地所株式会社分譲、前田建設工業株式会社施工による堅牢なヴィンテージ邸宅です。
特筆すべきは、都心の邸宅に相応しい充実した付帯設備です。駐車場は地下平置式となっており、メルセデスGクラス等のSUVやハイルーフ車も入庫可能。また、専有使用権付の地下トランクルーム(4.16平米)が無償で提供されており、ゴルフバッグやアウトドア用品等の収納にも困りません。



■地下平置式駐車場:(55,000円/月) ※[No.12] 駐車場所有者と直接使用契約
■駐輪場:(無償)
■バイク置場:無
■ペット飼育:可 (細則有)
※駐車場に関して詳細はお問い合わせください。

 

 

 

details

物件概要

建物名称
芝白金ヒルズ
所在地
東京都港区白金台5丁目
交通/最寄駅
東京メトロ南北線・都営三田線「白金台」駅徒歩7分、JR山手線「目黒」駅徒歩15分
販売価格
3億5,880万円
専有面積
138.62㎡
バルコニー面積
--
専有庭
--
その他面積
地下トランクルーム:4.16㎡(無償) ※専用使用権付
間取り
2LDK+2WIC+2Toilet
総戸数
21戸
建物/所在階
地下1階付7階建/1階
建物構造
鉄骨鉄筋コンクリート・鉄筋コンクリート造
権利形態
所有権
管理費
52,800円/月
修繕積立金
52,680円/月
地代
--
その他費用
光TV使用料(税込):1,365円/2ヵ月に1度偶数月に徴収
建築年
1985年(昭和60年)12月
リノベーション工事竣工
--
現況
空室
引渡
相談
取引態様
媒介
管理形態
全部委託管理/日勤
管理会社
株式会社長谷工コミュニティ
情報更新日
2026年4月9日
次回更新予定日
2026年4月23日
<広告主>
株式会社リビタ
宅地建物取引業者免許 東京都知事(5)第84602号
一級建築士事務所 東京都知事第51167
(社)東京都宅地建物取引業会会員
東京都目黒区三田一丁目12番23号
TEL 03-5656-0080

map

日本、東京都港区白金台5丁目12−3 芝白金ヒルズ

contact

お問い合わせ

物件のお問い合わせや、内覧のご希望は下記までご連絡ください。

フリーコール 0800-500-1001
営業時間 10:00-18:00
定休日 水・木・祝日
mobile 070-2478-4175
担当 厳(げん)
※こちらの物件をご購入の際には仲介手数料が必要になります。