広尾・代官山・恵比寿エリア
カルチャーの発信地・代官山の旧山手通り沿いに立地
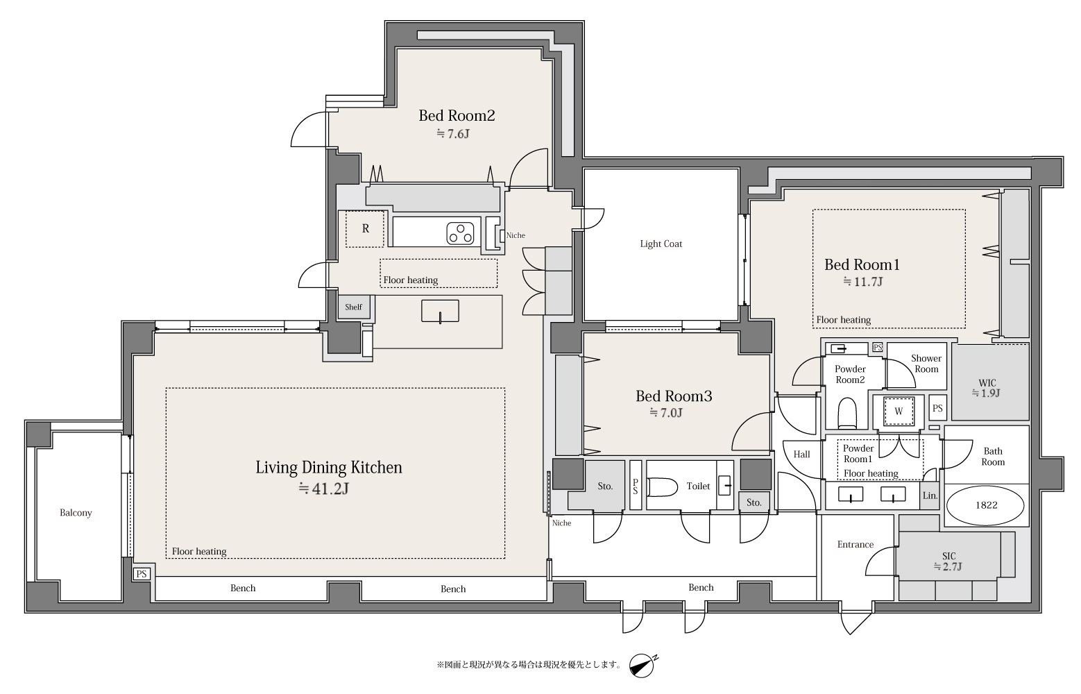
3LDK・160平米超 上質な素材が織りなす洗練の住まい
物件情報
コンセプト
カルチャーの発信地・代官山の旧山手通り沿いに立地
3LDK・160平米超 上質な素材が織りなす洗練の住まい
最先端のカルチャーやファッション、ライフスタイルがある代官山エリアに建つ「ディアナガーデン代官山」のR100 tokyo デザインの一邸をご紹介します。
本邸は南西角に位置する3LDK・160平米超の一邸。高台にあるため、1階でありながら地形の利を活かした開放的な眺望を享受でき、内装は窓からの自然光を優しく受け止める上質な素材で設えました。室内は落ち着いた色調で統一し、差し込む光と心地よく調和する穏やかな住まいに仕上げました。
ゆとりある玄関ホールの壁側にはリビングダイニングまで続くカウンターベンチを新設。お出かけの際の腰掛けやお気に入りのアートや花を飾るギャラリーなど、暮らしに彩りを添える多機能な居場所として設えました。
■設計デザイン: Lascaux G.K.(ラスコー合同会社) 横山幸佑
東京都出身。2004年日本大学理工学部建築学科卒業。06年設計事務所pointを経て、07年光井純アンドアソシエーツ建築設計事務所株式会社、ペリ クラーク アンド パートナーズ ジャパン勤務。18年林 祐希とともにLascaux G.K.(ラスコー合同会社)設立。

R100 tokyo magazine – Curiosity –
ラスコーの横山幸佑が目指す、タイムレスでノイズレスな空間づくり
※記事内の住戸は、同マンション内の別住戸の過去事例です。
「ディアナガーデン代官山」は24時間有人管理やコンシェルジュサービスを備え、日々の暮らしに安心と上質なホスピタリティがあります。またマンション管理適正評価で満点を取得しており、管理体制や設備状態など良好で高い管理水準を誇ります。都心の利便性を享受しながら、落ち着きある環境で永く住み継ぐに相応しい邸宅マンションです。
代官山エリアをもっと詳しく知りたい方は、こちらの記事をお読みください。
R100 tokyo WEBマガジン-Curiosity
■奧へと広がる邸宅街・代官山と常磐松で、東京の時空の広がりを感じる
■駐車場:空あり(43,000〜50,000円/月) サイズ制限あり
■駐輪場:空あり(300円/月)
■バイク置場:無
■トランクルーム:(1,000円/月) ※住戸付設[1.62㎡・No. 4]
■ペット:飼育可 (1戸につき2匹まで、体高42cm、体重12kg以内)
■ラウンジ、ウェイティングルーム、レセプション、ペットサニタリー、トラッシュルーム、防災備蓄倉庫
■セコムマンションセキュリティ
※駐車場等の空き状況は2025年12月19日現在のものです。
R100 tokyo による企画・リノベーション
本邸は R100 tokyo の企画・リノベーション物件です。R100 tokyo は、ブランドビジョン「本質的な価値感が表現される暮らし」と、空間作りのコンセプト「Crafted Home」に基づいた住まいづくりを行っています。それは、住まい手自らが本質的な心地良さ・豊かさを体感し、長く愛着を持ち住み続け、さらに、次の住まい手へと引き継いでいける住まいを目指したものです。
一邸一邸、個性ある空間をリノベーションするブランドだからこそ、立地や空間の個性を丁寧に紐解き、住むことの心地よさを実感し、人生の本質を愉しむための住まいづくりを行います。
それは、歴史に培われた「家」の原点と向き合い、上質さを尊重し、タイムレスな価値を創造すること。
空間のゆとりを生み出し、細部まで丁寧に整えること。
時間の積み重ねとともに深みを増し愛着をもたらす素材を選定すること。
そして、光の動きや季節の移り変わりを美しく感じ、日常を豊かに感じられるシーンを持つ空間を目指すこと。
そうした住まいと暮らしの提案をしていきます。
リノベーション
リノベーション内容
物件概要
ライフインフォメーション
お問い合わせ
物件のお問い合わせや、内覧のご希望は下記までご連絡ください。
この物件をお探しの方におすすめの記事